aanbod

Bar Brasserie De Blend

Vleutensevaart 100, Utrecht

Vraagprijs exploitatie € 360.000,-
plan bezichtiging object delen

Meer informatie

download brochure

Omschrijving

KERNGEGEVENS
Bar Brasserie De Blend bevindt zich op de begane grond met terras en tuin van kantoor- en hotelcomplex, de Blend. Tevens beschikt de Blend over een verschillende vergaderruimtes en een fantastische skylounge op de vijfde verdieping. Bar Brasserie De Blend is gelegen in het voormalige hoofdkantoor van Jacob Douwe Egberts, hier vind je ook een uniek aparthotel met 70 ruime studio’s en suites en verschillende kantoorruimtes.

De Blend heeft zich in korte tijd ontwikkeld tot een geliefde ontmoetingsplek in Utrecht-West. Sinds de opening aan de Vleutenseweg is De Blend uitgegroeid tot een vaste waarde in de wijk Lombok en de omliggende buurten. Uniek aan deze locatie is de ligging direct naast de rivier de Leidse Rijn, wat zorgt voor een ontspannen sfeer en een prachtig uitzicht vanaf het terras en de tuin.

De moderne, toegankelijke uitstraling en het gastvrije team zorgen ervoor dat iedereen zich direct thuis voelt, of je nu komt voor een snelle koffie, een uitgebreide lunch of een gezellige borrel. De Blend trekt een breed publiek: van buurtbewoners en forenzen tot studenten en jonge gezinnen uit de wijk. Dankzij de centrale ligging, de informele sfeer en het uitzicht op het water is het een ideale plek om af te spreken, te werken of even tot rust te komen tijdens een dagje in de stad.

KADASTRALE GEGEVENS
Gemeente Catharijne, sectie B, nummer 8689, groot 4.147 m2 (onderdeel van groot complex).

LOCATIE EN SITUERING
Vleutensevaart 100 te Utrecht is een markante locatie aan het water, gelegen in Utrecht. Vandaag de dag is Vleutensevaart 100 een levendige en goed bereikbare locatie, met voorzieningen zoals supermarkten, het treinstation, kantoren en diverse winkels in de directe omgeving.

DEMOGRAFISCHE GEGEVENS
Utrecht is een plaats in de gemeente Utrecht, gelegen in de provincie Utrecht. Utrecht telt 376.757 inwoners (2025) en ongeveer 194.040 huishoudens, met 168.736 woningen waarvan 44% koop. De gemiddelde WOZ-waarde van een woning in 2025 was €490.000. Er zijn 61.840 bedrijfsvestigingen in Utrecht.

BEREIKBAARHEID
Auto: uitstekend
Openbaar vervoer: uitstekend
Te voet/fiets: uitstekend

BELENDINGEN
Verschillende (horeca)bedrijven, winkels, woningen, appartementen en kantoren.

PARKEREN
Vrij parkeren (voor gasten) op eigen parkeerterrein.

BESTEMMING/GEBRUIK
D1 restaurant met terras.

BEDRIJFSCONCEPT
Bar Brasserie De Blend is een eigentijdse bar/brasserie met een gezellig en uitnodigend concept, ideaal voor ontbijt, lunch, borrel of een vroeg diner. Gelegen aan het water, vlak bij het station, combineert het interieur klassieke charme met industriële elementen, wat zorgt voor een warme en moderne sfeer. Het concept van Bar Brasserie De Blend draait om verfijnde eenvoud en het gebruik van duurzame, met zorg gekozen ingrediënten. Het menu biedt een gevarieerde selectie, waaronder huisgemaakte soepen, burgers, salades, broodjes, een uitgebreide lunch-etagère lunchplateau en borrelplanken. Website: https://www.deblend.nl/

OPPERVLAKTE
Begane grond: 492 m2 BVO
Terras / tuin: 500 m2
Skylounge: 99 m2 BVO

ZITPLAATSEN
Verkoopruimte 190 zitplaatsen
Terras 100 zitplaatsen (exclusief tuin)

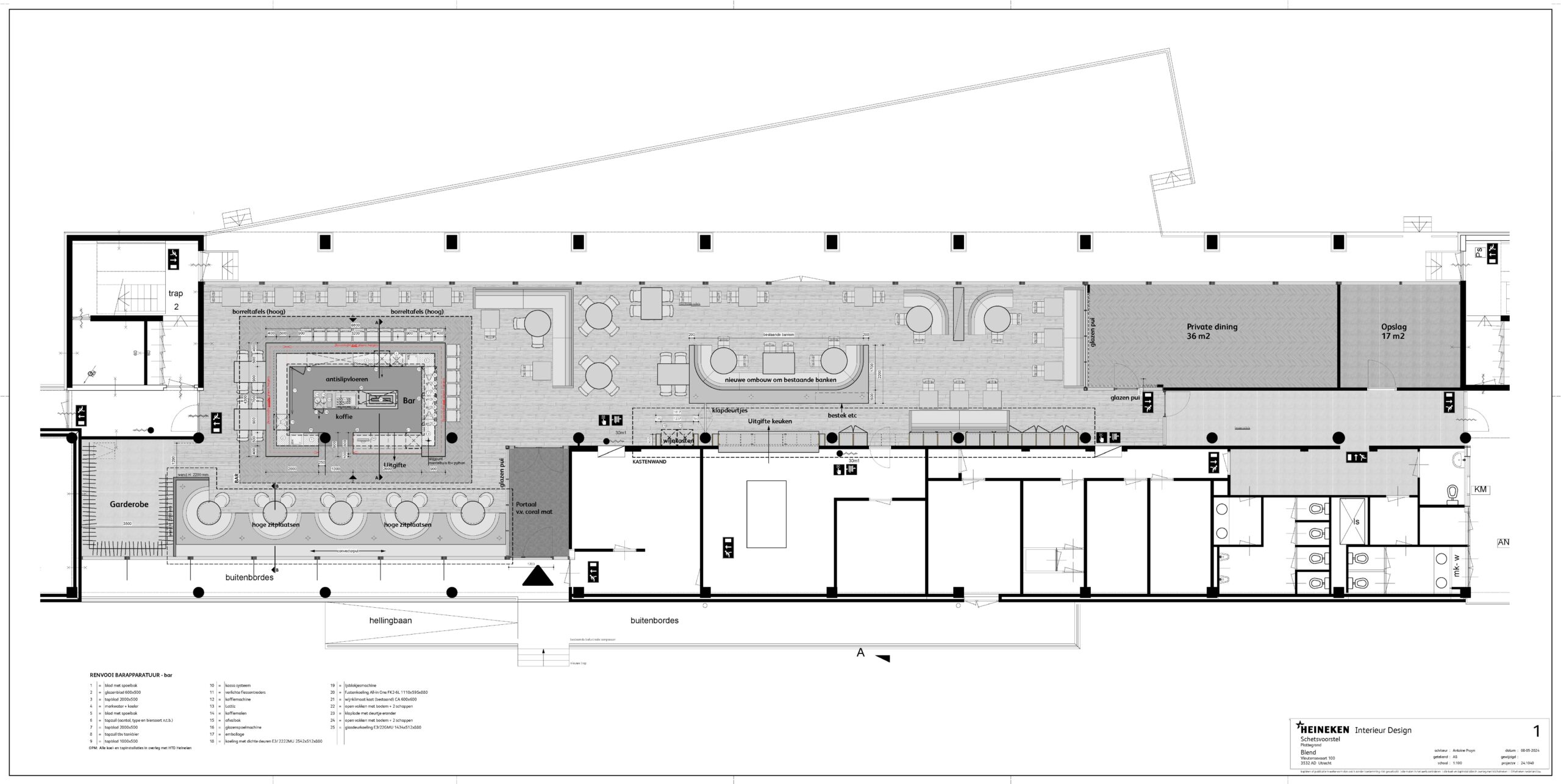
INDELING
Via de hoofdingang bereik je de entree, hier kom je direct de
zaak binnen met links en rechts diverse zitplaatsen en een bar, achterin het pand bevinden zich de keuken, opslag en toiletgroep.

Voor de plattegrond tekening wordt verwezen naar de bijlage.

INSTALLATIES EN APPARATUUR
Verwarming: ja
Elektrisch ja
Riolering ja
Afzuiginstallatie keuken: ja
Airconditioning: nee
Brandmeldinstallatie: nee, maar wel rookmelders
Camerabeveliging: ja
Goederenlift: nee
Personenlift nee
Luchtbehandeling: ja
Muziekinstallatie ja
Sprinklers: ja
Vetvangput: ja
Krachtstroom: ja
Waterontharder: ja
Warmwatervoorzieningen: ja/ja
Zonnepanelen: nee
Overige installaties: n.v.t.

PERSONEEL
Er is een personeelsverplichting, voor overzicht verwijzen wij naar de bijlage.

VERGUNNINGEN
Het object beschikt over de benodigde vergunningen.
Exploitatievergunning: ja
Drank- en horecavergunning: ja
Terrasvergunning: ja
Speelautomatenvergunning: nee
Gebruiksmelding: ja

(AFNAME)VERPLICHTINGEN
Er zijn geen (afname)verplichtingen jegens een brouwerij en/of andere leveranciers.

BRANDVEILIGHEIDSEISEN
De brandpreventieve middelen zijn aanwezig en gekeurd, voor het laatst in 2025.

INRICHTINGSEISEN
Het object voldoet aan de inrichtingseisen.

KEURINGEN / LABELS
Niet bekend.

INVENTARIS
De inventaris bevindt zich in goede staat.

LEASE/BRUIKLEEN OVEREENKOMSTEN
Er zijn geen lease-overeenkomsten of bruikleenovereenkomsten.

WOONRUIMTE
Er is geen woonruimte aanwezig.

BIJZONDERHEDEN / USP’S
Ligging aan het water
Skylounge
Ruim en sfeervol terras

VRAAGPRIJS BEDRIJFSEXPLOITATIE
€ 360.000,-, zegge: driehonderdzestigduizend euro.

De vraagprijs van de bedrijfsexploitatie bestaat o.a. uit: alle activiteiten en de daaraan verbonden bedrijfsinventaris / inrichting, huurdersbelang, goodwill, handelsnaam, de domeinnaam, ‘social’ media accounts, uitstaande boekingen/reserveringen, contractuele rechten en verplichtingen en personeel, exclusief de aanwezige voorraden.

HUURPRIJS REGISTERGOED
8% van de omzet per jaar, zegge: acht procent van de omzet per jaar exclusief BTW

Er is sprake van een huurovereenkomst bedrijfsruimte volgens artikel 7:290 BW, welke is ingegaan op 1 mei 2024, voor een periode van jaar met 5 optiejaren.

Bijlagen
Kadastrale gegevens
Inventarislijst
Plattegrondtekening
Winst- en verliesrekening
Investeringsoverzicht
Vergunningen
Huurovereenkomst + recente factuur
(lang)lopende verplichtingen
Keuringen / labels
Personeelsoverzicht

Voorraden
De voorraden dienen tegen inkoopprijzen te worden overgenomen op datum van overdracht.

Biedingen en gunning
Alle biedingen dienen uitsluitend schriftelijk en rechtsgeldig ondertekend te worden ingediend. Mondelinge, telefonische of op andere wijze gedane biedingen worden niet in behandeling genomen.

De gunning van de koop geschiedt uitsluitend door de verkoper, die zich het recht voorbehoudt om zonder opgave van redenen een of meerdere biedingen te weigeren, dan wel de gunning niet te laten plaatsvinden.

Aanbetaling
Bij koopovereenstemming dient koper een aanbetaling ter grootte van 10% van de koopsom te voldoen.

Disclaimer
Er kunnen geen rechten worden ontleend aan bovenstaande informatie. Alle verstrekte (online) informatie en in deze brochure is geheel vrijblijvend en onder voorbehoud. Hieraan kunnen geen rechten worden ontleend. Foto’s kunnen bewerkt zijn middels AI.

Info: Horecamakelaar Joey Hehamahua, 06 11744732 of joey@klaassenbv.nl

lees meer lees minder

Kenmerken

  • Status Beschikbaar
  • Type horeca Café-Restaurant, Eetcafé, Congres-Zalencentrum
  • Vraagprijs exploitatie € 360.000,-
  • Soort object Horeca
  • Oppervlakte 592 m²
  • Regio Utrecht (stad)
  • Ligging Bedrijventerrein, Kantorenpark
  • Bouwjaar 1989
  • Overname horeca personeel Nee
  • Zitplaatsen 150
  • Terras Ja
  • Woonruimte Nee
meer kenmerken lees minder

Media & foto’s

Omgeving

Vleutensevaart 100, Utrecht

Joey Hehamahua, Partner
VRAGEN?

Heeft u vragen over dit object? Joey Hehamahua helpt u graag verder

Contact

Meer informatie

download brochure
Meer dan 30+ experts

Ook vandaag zijn wij actief in 24 verschillende regio’s

zoekopdracht

Niet gevonden wat u zocht? Plaats een zoekopdracht

bekijk ook

Meer horeca aanbod

Beschikbaar

Prachtig horecabedrijf met terras

bekijk object

Prachtig horecabedrijf met terras

Voor Clarenburg 10 12, Utrecht

Te huur: het betreft een karakteristiek en representatief horecapand op de begane grond, gelegen op een uiterst centrale en drukbezochte locatie in het hart van de Utrechtse binnenstad. Het pand heeft een totale oppervlakte van circa 144 m² BVO en beschikt over een sfeervol terras van ongeveer 20 m². Door de twee samengevoegde gevels beslaat de front ca 11 meter. 

Bij interesse neem contact op met Joey Hehamahua op 06 11 744 732 of joey@klaassenbv.nl

  • Vraagprijs exploitatie € 135.000,-
  • Huurprijs € 7.586,- p.m. excl. BTW
bekijk object
Beschikbaar

DOGMA Hotdogbar

bekijk object

DOGMA Hotdogbar

Voorstraat 17, Utrecht

DOGMA Hotdogbar te Utrecht

Midden in het centrum van Utrecht Het object is goed gelegen aan een drukbezochte straat met vele mooie horeca/eet gelegenheden. 

Voor meer info: Joey Hehamahua op 06-11744732 

  • Vraagprijs exploitatie € 130.000,-
  • Huurprijs € 27.000,- p.j. excl. BTW
bekijk object
Aanbod

Bent u op zoek naar iets specifieks? Plaats een zoekopdracht of neem direct contact met ons op.

Contact
inplannen

Plan een bezichtiging

Naam(Vereist)
Dit veld is bedoeld voor validatiedoeleinden en moet niet worden gewijzigd.

Welke cookies zijn er?

We maken onderscheid tussen verschillende soorten cookies

Functionele cookies

We gebruiken zowel sessie-cookies (vervallen wanneer de webbrowser wordt afgesloten) en blijvende cookies (blijven op je apparaat tenzij deze worden gewist). Hieronder volgt een overzicht van de cookies waar we gebruik van maken.

Analytische cookies

We gebruiken zowel sessie-cookies (vervallen wanneer de webbrowser wordt afgesloten) en blijvende cookies (blijven op je apparaat tenzij deze worden gewist). Hieronder volgt een overzicht van de cookies waar we gebruik van maken.

Tracking cookies

We gebruiken zowel sessie-cookies (vervallen wanneer de webbrowser wordt afgesloten) en blijvende cookies (blijven op je apparaat tenzij deze worden gewist). Hieronder volgt een overzicht van de cookies waar we gebruik van maken.

Social media plug-in cookies

We gebruiken zowel sessie-cookies (vervallen wanneer de webbrowser wordt afgesloten) en blijvende cookies (blijven op je apparaat tenzij deze worden gewist). Hieronder volgt een overzicht van de cookies waar we gebruik van maken.

zoeken

Wij helpen u graag met uw zoektocht

"*" geeft vereiste velden aan

Dit veld is bedoeld voor validatiedoeleinden en moet niet worden gewijzigd.

Zoekopdracht

Ontvang als eerste ons nieuwe aanbod

"*" geeft vereiste velden aan

Wilt u een object kopen of huren?

Waar bent u naar op zoek?

Hoe kunnen wij u bereiken?

Dit veld is bedoeld voor validatiedoeleinden en moet niet worden gewijzigd.