Omschrijving
Bedrijfshal met apart kantoor verdeeld over 2 ruimten op de 1e etage met betonvloer, roldeur voorzijde en krachtstroom voorziening. De hoogte van de begane grond is circa 2.85 meter. De ruimte is uitermate geschikt voor een ondernemer die de locatie als opslag gebruikt of als onderdeel in een logistiek proces. Woerden ligt centraal tussen de steden Utrecht, Rotterdam, Amsterdam en Den Haag. Met de auto bent u binnen 5 minuten op de A12, in circa 15 minuten op de A2 en binnen 50 minuten van de luchthaven (Schiphol).
Aanwezig:
– elektra aansluitingen + krachtstroom
– toiletgroep met douche op de begane grond
– keuken op de 1e etage
– alle bedragen zijn excl. btw
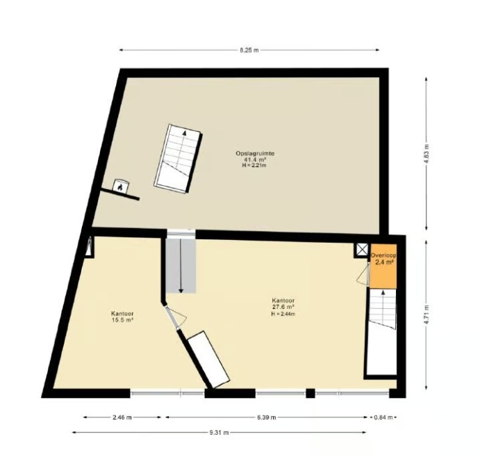
Indeling
Totale perceel twee are en elf centiare, bedrijfshal 70,4 m, toilet 2,56 m. trap 3,38 m Hal 3.77m, kantoor 44,3 mtr magazijn 41,5 TOTAAL bedrijfspand 170 mtr en buitenterrein 125 mtr.
Bijzonderheden
– Huurperiode: 2 + 2 jaar
– Het gehele pand is recent geschilderd aan de gehele binnenzijde en dus instapklaar
– Bestemming industrieel
– Energielabel: A+
– Zeer geschikt voor een cateringbedrijf
Huurcondities
Huurprijs: € 2.295,- per maand excl. BTW.
Huurtermijn: 2 + 2 jaar.
Servicekosten: Inbegrepen in huurprijs.
Aanvaarding: In overleg.
Opzegtermijn: 12 maanden.
Zekerheidstelling: Waarborgsom: ter grootte van 2 maanden huur excl. BTW.
Huurindexering: Jaarlijks overeenkomstig het maand prijsindexcijfer volgens het consumentenprijsindexcijfer (CPI) reeks CPI alle huishoudens (2006=100) gepubliceerd door het Centraal Bureau voor de Statistiek (CBS). De huurprijs zal nimmer minder bedragen dan de huurprijs van het voorafgaande jaar. Indexatie voor het eerst 12 maanden na huur ingangsdatum en zo vervolgens jaarlijks.
BTW: Ja, is van toepassing.
Goedkeuring
Het bovenstaande is onder finaal voorbehoud van de eigenaar.
Disclaimer: Ondanks dat deze publicatie met de grootst mogelijke zorgvuldigheid is samengesteld is Klaassen Vastgoedmakelaardij BV niet aansprakelijk te stellen voor onjuiste of onvolledige informatie die in deze publicatie vermeld staan. Aan deze gegevens kunnen geen rechten worden ontleend.
====================
Alle beschikbare informatie ontvangen?
Benieuwd naar alle beschikbare informatie over het pand? Vraag dan nu, onder de grote contactbutton, de gratis objectbrochure van de Ampereweg 13 in Woerden aan en ontvang de objectbrochure binnen 5 minuten in uw mailbox. Uiteraard kunt u ook direct een geheel vrijblijvende bezichtiging met de beheerder van het pand inplannen..
Kenmerken
- Status Beschikbaar
- Type horeca Lunchroom, Broodjeszaak, Cafetaria, Restaria
- Huurprijs p.m. € 2.295,-
- Soort object Horeca
- Oppervlakte 140 m²
- Regio Zuid-Holland
- Ligging Bedrijventerrein
- Bouwjaar 1980
- Overname horeca personeel Nee
- Zitplaatsen n.v.t.
- Terras Nee
- Woonruimte Nee
Media & foto’s

Omgeving
Ampereweg 13, Woerden


Niet gevonden wat u zocht? Plaats een zoekopdracht
Meer horeca aanbod

Beleggingsobject met ontwikkelingsmogelijkheden
bekijk objectBeleggingsobject met ontwikkelingsmogelijkheden
Utrechtsestraatweg 33, Woerden
Beleggingsobject met ontwikkelingsmogelijkheden
De (horeca) bedrijfsruimte op de begane grond is thans niet verhuurd. Klaassen is op zoek naar een nieuwe huurder. De 12 studio’s op de verdiepingen zijn verhuurd.
Info: Joey Hehamahua, 0611744732 of joey@klaassenbv.nl
- Vraagprijs registergoed € 1.775.000,- k.k.
- Vraagprijs exploitatie Prijs op aanvraag

Horecabedrijfsruimte te huur
bekijk objectHorecabedrijfsruimte te huur
Utrechtsestraatweg 33, Woerden
Deze casco plus horecabedrijfsruimte nabij het centrum van Woerden wordt door Klaassen Vastgoedmakelaardij te huur aangeboden. Het betreft een unieke horecabedrijfsruimte aan het water van ca. 575m² (deel verhuurmogelijk). Voorheen in gebruik door De Beren Restaurants.
Info: Joey Hehamahua, 06 11 744 732 of joey@klaassenbv.nl
- Vraagprijs exploitatie Prijs op aanvraag
- Huurprijs € 65.000,- p.j. excl. BTW