aanbod

Aziatisch restaurant New Garden

Bellestein 53, Ede

Vraagprijs exploitatie € 100.000,-
Huurprijs € 3.900,- p.m.
plan bezichtiging object delen

Omschrijving

KERNGEGEVENS
Aziatisch restaurant New Garden, gelegen in een representatieve horecapand aan de Bellestein 53, in het hart van het gelijknamige wijkwinkelcentrum in Ede. Door de gunstige ligging nabij grote publiekstrekkers geniet de locatie van een constante passantenstroom en een uitstekende bereikbaarheid met gratis parkeergelegenheid. Het object beschikt over een totale oppervlakte van circa 223 m², inclusief een ruime professionele keuken en een indrukwekkende frontbreedte van 18 meter aan het centrale plein. De huidige exploitatie kent een bewezen trackrecord met een sterk fundament in afhaal- en bezorgactiviteiten, wat aanzienlijke groeikansen biedt voor een breder à-la-carte concept of een hybride horecaformule.

LOCATIE EN SITUERING
Het object is gelegen aan de Bellestein 53 in Ede, midden in een drukbezocht wijkwinkelcentrum. Winkelcentrum Bellestein is het kern-wijkwinkelcentrum van de wijk Veldhuizen, met een divers aanbod aan dagelijkse voorzieningen waaronder meerdere supermarkten (Lidl en Jumbo), drogisterijen (o.a. Kruitvat), mode- en detailhandel en diverse horecagelegenheden. Het centrum biedt gratis parkeergelegenheid en is goed bereikbaar vanuit de omliggende woonwijken. Deze combinatie van voorzieningen en bereikbaarheid resulteert dagelijks in een stabiel bezoekersniveau, gedragen door de lokale verzorgingspopulatie van Ede en directe omgeving. Het woon-werkverkeer en de dagelijkse koopstromen versterken de potentiële klantenstroom naar horeca-exploitanten.

DEMOGRAFISCHE GEGEVENS
Ede is een plaats in de gemeente Ede, gelegen in de provincie Gelderland. In 2025 telde Ede 81.700 inwoners. Ede heeft ongeveer 53.071 huishoudens, Er zijn 35.978 woningen, waarvan 61% koopwoningen zijn. De gemiddelde WOZ-waarde van een woning in 2025 was €387.539.

BEREIKBAARHEID
Auto: Uitstekend
Openbaar vervoer: goed
Te voet/fiets: goed

BELENDINGEN
Verschillende (horeca)bedrijven, winkels, woningen, appartementen.

PARKEREN
Vrij parkeren in de directe omgeving. Er zijn voldoende parkeermogelijkheden.

BESTEMMING/GEBRUIK
Het bestemmingsplan “Ede” is vastgesteld op 06 juni 2013 door de gemeenteraad van Ede. Het plangebied omvat een groot gedeelte van het wijk Veldhuizen in Ede, dat wordt gekarakteriseerd door een gemengde functie van winkels, dienstverlening, horeca en wonen. Voor het object geldt gemengd – 2, bestemd voor onder andere, detailhandel en horecabedrijven van de categorieën 1 en 2, uitsluitend op de begane grond.

BEDRIJFSCONCEPT
Het huidige bedrijfsconcept New Garden biedt momenteel Aziatische gerechten aan. dit karakteristieke horecabedrijf met een bewezen exploitatieresultaat en sterke omzet uit afhaal en bezorging. Het restaurant genereert circa 90 procent van de omzet uit afhaal en bezorgactiviteiten, een fundament dat extra waarde geeft aan formules met vergelijkbare of uitbreidbare afzetkanalen. Dit betekend dat er in voor het á-la-carte restaurant flinke groei mogelijkheden zijn. De bezorging wordt georganiseerd met twee bezorgfietsen en vier bromfietsen.

Het pand is uitgelezen geschikt voor exploitanten die een modern, winstgevend horeca-concept willen neerzetten op een locatie met bewezen traffic, en omzet uit op dit moment met name vanuit afhaal en bezorging. Denk aan concepten zoals een kwalitatieve lunchroom, een dagcafé of een hybride formule die zit- en afhaal- bezorgservice combineert en inspeelt op hedendaagse consumentengedragingen. Met gerichte modernisering van interieur en uitstraling kan dit object de zichtbaarheid en gastbeleving verder versterken.

OPPERVLAKTE
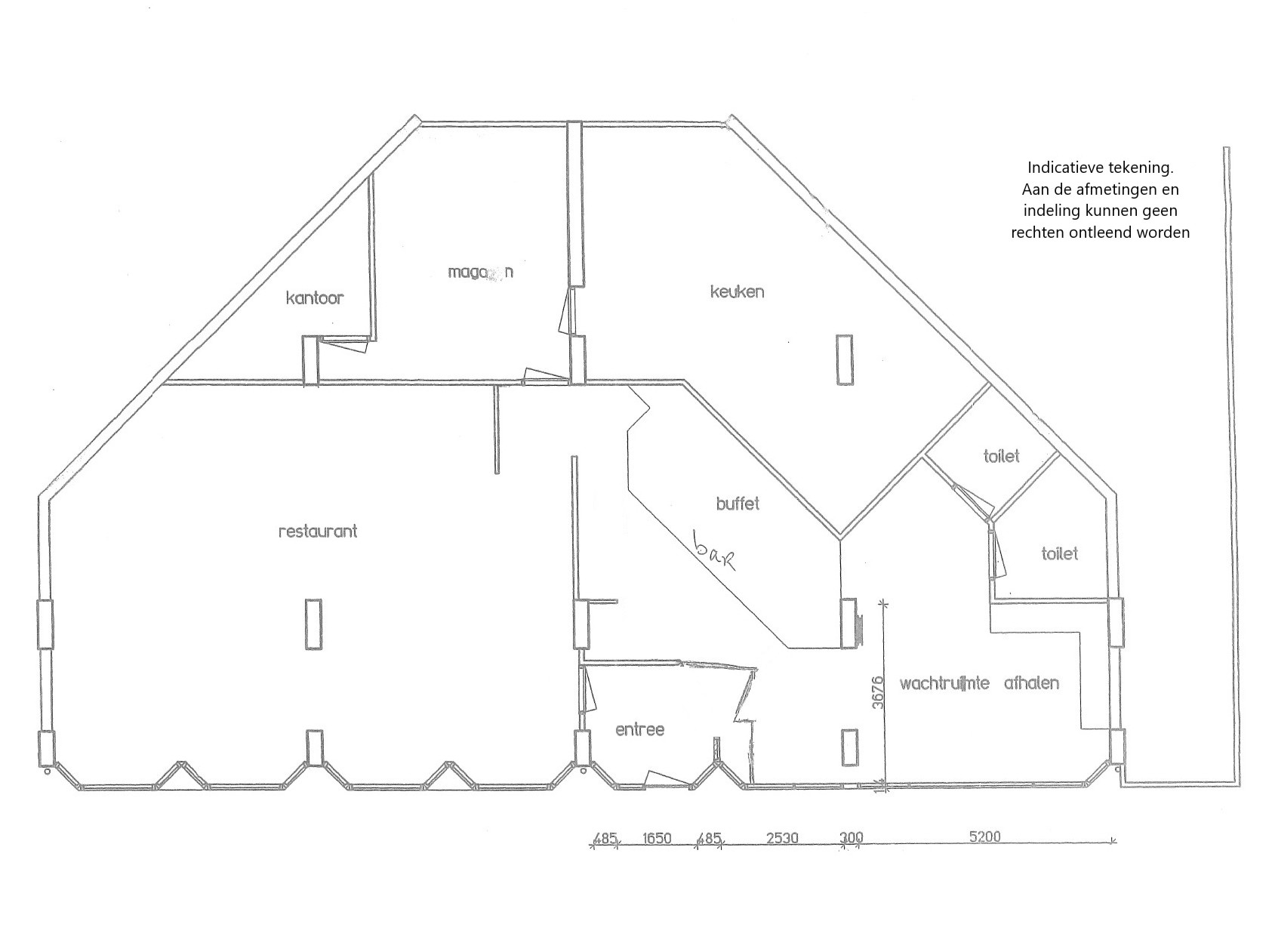
Het à-la-carte restaurant is circa 80m² groot, met een ruime keuken van circa 35m² en een totale oppervlakte van circa 223m². De brede gevel (18 meter) biedt aanzienlijke attentiewaarde richting het plein van het winkelcentrum en een prettig zicht op de passantenruimte. De frontbreedte maakt dit pand uitermate geschikt voor zichtbare bediening en profilering van een horecaconcept. Er zijn signalen dat er mogelijk ruimte is voor een terras, wat de exploitatiemogelijkheden verder vergroot (onder voorbehoud van gemeentelijke toestemming).

INDELING
Via het entree bereikt u rechts de wachtruimte voor afhalen, met zitgelegenheid zowel los als aan de bar/afgifte punt. Hier vindt u ook 2 afzonderlijke toiletgroepen. Links van het entree is het restaurant gelegen met ook hier toegang tot de bar. Achter de bar is een doorgang tot de ruime keuken, met daar aangelegen magazijnruimte en kantoor.

PERSONEEL
De personeelsformatie bestaat naast de ondernemer zelf uit circa 6 vaste medewerkers en ongeveer 12 oproepkrachten, waarbij overname van personeel bespreekbaar is.

VERGUNNINGEN
Het object beschikt over de benodigde vergunningen.
Exploitatievergunning: ja
Drank- en horecavergunning: ja
Speelautomatenvergunning: ja
Gebruiksmelding: ja

(AFNAME)VERPLICHTINGEN
Er zijn geen (afname)verplichtingen jegens een brouwerij en/of andere leveranciers.

INRICHTINGSEISEN
Het object voldoet aan de inrichtingseisen

INVENTARIS
De inventaris bevindt zich in goede/gebruikte staat.

WOONRUIMTE
Er is geen woonruimte aanwezig.

BIJZONDERHEDEN / USP’S
Ligging in het winkelcentrum Bellestein van Ede
Brede gevel richting het plein op zichtlocatie

VRAAGPRIJS BEDRIJFSEXPLOITATIE
€ 100.000,-, zegge: honderdduizend euro

De vraagprijs van de bedrijfsexploitatie bestaat o.a. uit: alle activiteiten en de daaraan verbonden bedrijfsinventaris / inrichting, huurdersbelang, goodwill, handelsnaam, de domeinnaam, ‘social’ media accounts, uitstaande boekingen/reserveringen, contractuele rechten en verplichtingen en personeel, exclusief de aanwezige voorraden.

HUURPRIJS REGISTERGOED
€ 46.800,- per jaar, zegge: zesenveertigduizend achthonderd euro exclusief BTW

Huuringangsdatum
Met de overnemende partij zal een nieuwe huurovereenkomst worden afgesloten (onder voorbehoud van gunning verhuurder).

Huurtermijn
5 jaar plus 5 optiejaren, etc..

Opzegtermijn
12 maanden.

Indexatie
Jaarlijks wordt de huur op 1 november geïndexeerd, voor het eerst op 1 november 2027.

Waarborgsom/Bankgarantie
€ 11.700,- (geen BTW van toepassing op een waarborgsom)

Opleverniveau
Het gehuurde zal opgeleverd worden in de staat als is weergegeven op de foto’s. Verhuurd wordt het casco plus: pui, toiletgroep, en CV installatie.

Bijzonderheid
De verkoper kan voor een korte termijn, (1 tot 2 jaar) voor woonruimte zorgen.

Voorraden
De voorraden dienen tegen inkoopprijzen te worden overgenomen op datum van overdracht.

Biedingen en gunning
Alle biedingen dienen uitsluitend schriftelijk en rechtsgeldig ondertekend te worden ingediend. Mondelinge, telefonische of op andere wijze gedane biedingen worden niet in behandeling genomen.

De gunning van de koop geschiedt uitsluitend door de verkoper, die zich het recht voorbehoudt om zonder opgave van redenen een of meerdere biedingen te weigeren, dan wel de gunning niet te laten plaatsvinden.

Aanbetaling
Bij koopovereenstemming dient koper een aanbetaling ter grootte van 10% van de koopsom te voldoen.

Voor meer informatie of een bezichtiging kunt u contact opnemen met Bas Verheijen via 06 518 564 54 of 033-258 13 30

Disclaimer
Er kunnen geen rechten worden ontleend aan bovenstaande informatie. Alle verstrekte (online) informatie en in deze brochure is geheel vrijblijvend en onder voorbehoud. Hieraan kunnen geen rechten worden ontleend. Foto’s kunnen bewerkt zijn middels AI.

lees meer lees minder

Kenmerken

  • Status Beschikbaar
  • Type horeca Café-Restaurant, Eetcafé, Bistro, Petit-Restaurant
  • Vraagprijs exploitatie € 100.000,-
  • Huurprijs p.m. € 3.900,-
  • Soort object Horeca
  • Oppervlakte 223 m²
  • Regio Gelderland
  • Ligging In woonwijk, Wijkwinkelcentrum
  • Bouwjaar 1980
  • Overname horeca personeel Ja
  • Zitplaatsen 60
  • Terras Nee
  • Woonruimte Nee
meer kenmerken lees minder

Media & foto’s

Omgeving

Bellestein 53, Ede

Marije Brinkman, Makelaar
vragen?

Heeft u vragen over dit object?
 Bel hoofdkantoor

naar contact
Meer dan 30+ experts

Ook vandaag zijn wij actief in 24 verschillende regio’s

zoekopdracht

Niet gevonden wat u zocht? Plaats een zoekopdracht

bekijk ook

Meer horeca aanbod

Beschikbaar

Discreet top restaurant op top locatie Zuidholland

bekijk object

Discreet top restaurant op top locatie Zuidholland

Maaskade 109 B, Rotterdam

Discreet top restaurant op top locatie in duurzaam nieuw bedrijfspand ter overname. 

Het restaurant heeft binnen ca 300 zitplaatsen, compleet nieuwe en stijlvolle inrichting met alle moderne technieken. De inrichting is voor vele concepten geschikt: thema restaurant, specialiteiten restaurant, all-you-can eat etc. Omzet ca € 1.4 mln met goed rendement en groeiende.

Voor info bedrijfsadviseur Erik Meijer tel 0623626307 of e.meijer@klaassenbv.nl

  • Vraagprijs exploitatie Prijs op aanvraag
  • Huurprijs € 16.500,- p.m. excl. BTW
bekijk object
Beschikbaar

Restaurant omgeving Almere

bekijk object

Restaurant omgeving Almere

Discreet

Turnkey horecabedrijf ter overname

Modern ingericht, gezellig en op een uitstekende locatie. Geschikt voor meerdere concepten, met terras

Voor meer info: Pepijn van Lier op 0640240698 of via p.vanlier@klaassenbv.nl

  • Vraagprijs exploitatie Prijs op aanvraag
  • Huurprijs op aanvraag
bekijk object
Aanbod

Bent u op zoek naar iets specifieks? Plaats een zoekopdracht of neem direct contact met ons op.

Contact
inplannen

Plan een bezichtiging

Naam(Vereist)
Dit veld is bedoeld voor validatiedoeleinden en moet niet worden gewijzigd.

Welke cookies zijn er?

We maken onderscheid tussen verschillende soorten cookies

Functionele cookies

We gebruiken zowel sessie-cookies (vervallen wanneer de webbrowser wordt afgesloten) en blijvende cookies (blijven op je apparaat tenzij deze worden gewist). Hieronder volgt een overzicht van de cookies waar we gebruik van maken.

Analytische cookies

We gebruiken zowel sessie-cookies (vervallen wanneer de webbrowser wordt afgesloten) en blijvende cookies (blijven op je apparaat tenzij deze worden gewist). Hieronder volgt een overzicht van de cookies waar we gebruik van maken.

Tracking cookies

We gebruiken zowel sessie-cookies (vervallen wanneer de webbrowser wordt afgesloten) en blijvende cookies (blijven op je apparaat tenzij deze worden gewist). Hieronder volgt een overzicht van de cookies waar we gebruik van maken.

Social media plug-in cookies

We gebruiken zowel sessie-cookies (vervallen wanneer de webbrowser wordt afgesloten) en blijvende cookies (blijven op je apparaat tenzij deze worden gewist). Hieronder volgt een overzicht van de cookies waar we gebruik van maken.

zoeken

Wij helpen u graag met uw zoektocht

"*" geeft vereiste velden aan

Dit veld is bedoeld voor validatiedoeleinden en moet niet worden gewijzigd.

Zoekopdracht

Ontvang als eerste ons nieuwe aanbod

"*" geeft vereiste velden aan

Wilt u een object kopen of huren?

Waar bent u naar op zoek?

Hoe kunnen wij u bereiken?

Dit veld is bedoeld voor validatiedoeleinden en moet niet worden gewijzigd.