aanbod

Commerciële ruimte Toplocatie Nijmegen

Koningstraat 29, Nijmegen

Huurprijs € 1.950,- p.m. excl. BTW
plan bezichtiging object delen

Omschrijving

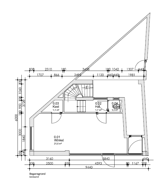
Commerciële ruimte
Koningstraat 29
6511 LA Nijmegen

Algemeen
Op een absolute A1-locatie, midden in het bruisende centrum van Nijmegen, mogen wij u deze charmante commerciële ruimte aan de Koningstraat 29 te huur aanbieden. Deze compacte maar impactvolle ruimte bevindt zich in een van de meest geliefde winkelstraten van de stad, wat zorgt voor een uitstekende zichtbaarheid en een hoge attentiewaarde bij het winkelend publiek. Hoewel het pand momenteel in gebruik is als bonbonwinkel met koffie-uitgifte, leent de veelzijdige uitstraling zich bij uitstek voor diverse andere commerciële concepten. Bestemming is detailhandel.

De verkoopruimte onderscheidt zich door de karakteristieke, openslaande pui aan de voorzijd
e. Deze pui zorgt niet alleen voor veel lichtinval, maar creëert ook een directe en uitnodigende verbinding met de straat.
Het object is van alle gemakken voorzien; zo beschikt de ruimte over een praktische kleine opslagruimte, tevens opslagruimte in de kelder en een eigen personeelstoilet. Daarnaast is er toegang tot een gedeelde binnenplaats. Kortom, een unieke kans voor een ondernemer die op zoek is naar een instapklare basis op een van de beste locaties die Nijmegen te bieden heeft.

Huurovereenkomst
Huurovereenkomst: conform ROZ-model 7:290 met algemene bepalingen 2022.
Looptijd: 5 + 5 jaar.
Waarborgsom: 3 maanden incl. BTW.
Ingangsdatum: n.o.t.k. aanvaarding per 01 mei 2026 mogelijk.
Huurprijs: € 1.950,00 per maand excl. BTW

lees meer lees minder

Kenmerken

  • Status Beschikbaar
  • Type horeca Lunchroom, Broodjeszaak, Ijssalon
  • Huurprijs p.m. € 1.950,-
  • Soort object Horeca
  • Oppervlakte 38 m²
  • Regio Gelderland
  • Ligging n.v.t.
  • Bouwjaar 1955
  • Overname horeca personeel Nee
  • Zitplaatsen n.v.t.
  • Terras Nee
  • Woonruimte Nee
meer kenmerken lees minder

Media & foto’s

Omgeving

Koningstraat 29, Nijmegen

Rody Teulings, Bedrijfsadviseur
VRAGEN?

Heeft u vragen over dit object? Rody Teulings helpt u graag verder

Contact
Meer dan 30+ experts

Ook vandaag zijn wij actief in 24 verschillende regio’s

zoekopdracht

Niet gevonden wat u zocht? Plaats een zoekopdracht

bekijk ook

Meer horeca aanbod

Beschikbaar

400 m2 Horecaruimte Nijmegen Oosterhout

bekijk object

400 m2 Horecaruimte Nijmegen Oosterhout

Griftdijk 201, Nijmegen

Ca. 400 m² horecaruimte met een prachtig tuinterras en een groot eigen parkeerterrein. Het object is uitstekend gelegen aan de drukke Griftdijk in Oosterhout (Nijmegen-Noord) en goed bereikbaar via de A15 en A325. Het pand is bij uitstek geschikt voor diverse grootschalige restaurantconcepten. Nagenoeg volledig ingericht.

Voor info: Horecamakelaar R. van Doorn, 06-20002530

  • Vraagprijs exploitatie € 65.000,-
  • Huurprijs € 7.000,- p.m.
bekijk object
Beschikbaar

De Professor

bekijk object

De Professor

Professor Bromstraat 54, Nijmegen

Een unieke kans om een succesvol en veelzijdig studenten-, evenementen- en eetcafé met afhaal- en bezorg locatie  over te nemen. Deze onderneming staat bekend om goed eten, gemak en een warme, toegankelijke sfeer.

Info: Horecamakelaar Rody Teulings, 06-247 386 20

  • Vraagprijs exploitatie € 179.000,-
  • Huurprijs € 2.384,- p.m. excl. BTW
bekijk object
Aanbod

Bent u op zoek naar iets specifieks? Plaats een zoekopdracht of neem direct contact met ons op.

Contact
inplannen

Plan een bezichtiging

Naam(Vereist)
Dit veld is bedoeld voor validatiedoeleinden en moet niet worden gewijzigd.

Welke cookies zijn er?

We maken onderscheid tussen verschillende soorten cookies

Functionele cookies

We gebruiken zowel sessie-cookies (vervallen wanneer de webbrowser wordt afgesloten) en blijvende cookies (blijven op je apparaat tenzij deze worden gewist). Hieronder volgt een overzicht van de cookies waar we gebruik van maken.

Analytische cookies

We gebruiken zowel sessie-cookies (vervallen wanneer de webbrowser wordt afgesloten) en blijvende cookies (blijven op je apparaat tenzij deze worden gewist). Hieronder volgt een overzicht van de cookies waar we gebruik van maken.

Tracking cookies

We gebruiken zowel sessie-cookies (vervallen wanneer de webbrowser wordt afgesloten) en blijvende cookies (blijven op je apparaat tenzij deze worden gewist). Hieronder volgt een overzicht van de cookies waar we gebruik van maken.

Social media plug-in cookies

We gebruiken zowel sessie-cookies (vervallen wanneer de webbrowser wordt afgesloten) en blijvende cookies (blijven op je apparaat tenzij deze worden gewist). Hieronder volgt een overzicht van de cookies waar we gebruik van maken.

zoeken

Wij helpen u graag met uw zoektocht

"*" geeft vereiste velden aan

Dit veld is bedoeld voor validatiedoeleinden en moet niet worden gewijzigd.

Zoekopdracht

Ontvang als eerste ons nieuwe aanbod

"*" geeft vereiste velden aan

Wilt u een object kopen of huren?

Waar bent u naar op zoek?

Hoe kunnen wij u bereiken?

Dit veld is bedoeld voor validatiedoeleinden en moet niet worden gewijzigd.