Hotel-restaurant met vrijstaande bedrijfswoning
Apeldoornseweg 30, Hoenderloo
Omschrijving
Te koop: Apeldoornseweg 30 en 32 te Hoenderloo (Voorheen Hotel-restaurant Buitenlust)
KERNGEGEVENS
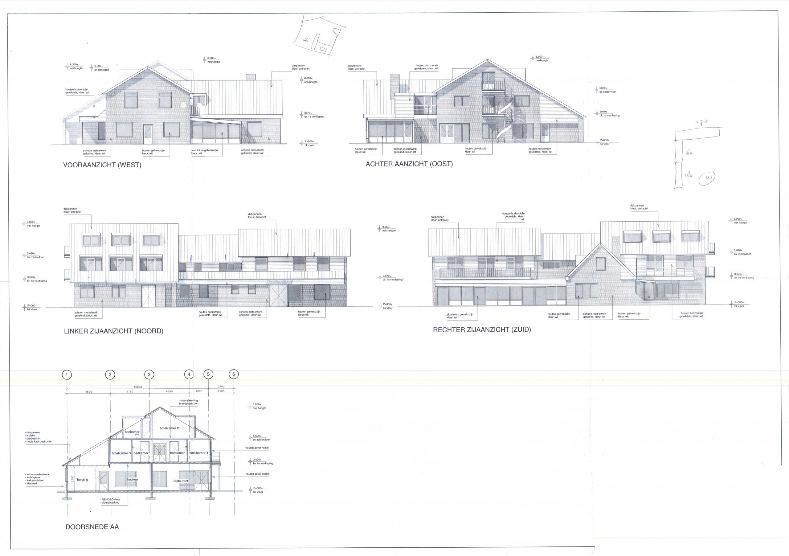
Het object aan de Apeldoornseweg 30 en 32 in Hoenderloo omvat een hotel met restaurant, terras, zelfstandig appartement en vrijstaande bedrijfswoning op een perceel van 3.173 m². Het ligt op slechts 200 meter van de ingang van Nationaal Park De Hoge Veluwe, in een bosrijke en toeristische omgeving.
Het hotel-restaurant beslaat circa 865 m² en de woning circa 120 m².
Er zijn 14 hotelkamers, een appartement, 75–80 zitplaatsen in het restaurant en 150–200 op het terras.
KADASTRALE GEGEVENS
Gemeente Beekbergen, sectie G, nummer 1504, groot 1.920 m2 (hotelgebouw)
Gemeente Beekbergen, sectie G, nummer 1862, groot 510 m2 (bedrijfswoning)
Gemeente Beekbergen, sectie G, nummer 1983, groot 707 m2 (parkeerterrein), totaal groot 3.173 m2.
Voor een uitgebreid overzicht van de kadastrale gegevens verwijzen wij naar de bijlagen in de brochure.
LOCATIE EN SITUERING
Gelegen aan de Apeldoornseweg 30 en 32 in Hoenderloo, bevindt zich het prachtige registergoed, een karakteristiek pand op een toplocatie op loopafstand (ca. 200 mtr.) van de ingang van Nationaal Park De Hoge Veluwe.
Deze unieke plek combineert de rust van de natuur met uitstekende bereikbaarheid. Direct aan een doorgaande weg en omringd door bosrijke fiets- en wandelroutes, is dit hotel / restaurant dé uitvalsbasis voor natuurliefhebbers, recreanten en toeristen. Een geliefde locatie met een rijke historie, midden in één van de mooiste gebieden van Nederland.
DEMOGRAFISCHE GEGEVENS
Buitenlust ligt in het rustige Hoenderloo, midden op de Veluwe. De omgeving telt ca. 1.460 inwoners en 690 huishoudens, met een gemiddeld inkomen van € 34.400 per persoon. Met ruim 280 bedrijven in de regio, waarvan een groot deel in de horeca en recreatie, is dit een aantrekkelijke locatie voor toerisme en ondernemerschap.
Aantal inwoners: 1.460
Aantal huishoudens: 690
Gemiddeld inkomen per inwoner: € 34.400
Aantal bedrijven: 280 bedrijfsvestigingen
BEREIKBAARHEID
Auto: Uitstekend
Openbaar vervoer: Redelijk
Te voet/fiets: Goed tot zeer goed
BELENDINGEN
Bos, weiland, horeca, woningen, zorgcentrum en Nationaal Park De Hoge Veluwe.
PARKEREN
Gratis parkeren op eigen terrein. Deels parkeren op grond van naastliggende perceel.
BESTEMMING/GEBRUIK
Bestemmingplan Dorp Hoenderloo, bestemming Horeca-1. De voor ‘Horeca – 1’ aangewezen gronden zijn bestemd voor:
– horeca in categorie 1 van de bij deze regels behorende Lijst van toegelaten horecatypen (zie omgevingsloket);
– beroepsuitoefening aan huis;
– niet-publieksgerichte bedrijfsmatige activiteiten aan huis;
– een bedrijfswoning, ter plaatse van de aanduiding ‘bedrijfswoning’;
– met de daarbij behorende bouwwerken en parkeervoorzieningen.
Voor meer info wordt verwezen naar omgevingsloket.nl
BEDRIJFSCONCEPT
Het bedrijf is thans gesloten. Gelegen aan de rand van Hoenderloo ligt het gezellige hotel restaurant Buitenlust met een groot terras en met mooi uitzicht op het bos en landgoed. Buitenlust was ca. 65 jaar geopend voor groepen en evenementen zoals vergaderingen, feesten, bruiloften en bedrijfsbijeenkomsten.
OPPERVLAKTE
De totale perceelsoppervlakte bedraagt ca. 3.173 m².
Het hotel-/restaurantgedeelte beslaat totaal circa 865 m², exclusief terrassen.
De bedrijfswoning heeft een oppervlakte van circa 120 m², exclusief tuin, terras en omliggende grond.
De genoemde metrages zijn gebaseerd op een globale visuele inschatting.
Er is geen meetrapport conform NEN 2580 beschikbaar. Wel zijn er plattegrondtekeningen aanwezig.
ZITPLAATSEN / HOTELKAMERS
Restaurant 75 tot 80 zitplaatsen
Serre 40 tot 50 zitplaatsen
14 hotelkamers
1 zelfstandig appartment met veranda en tuin.
Terras 150 tot 200 zitplaatsen.
INDELING
De indeling is weergegeven op de plattegrondtekening, toegevoegd aan de bijlage.
INSTALLATIES EN APPARATUUR
Verwarming: ja Via CV ketels en radiatoren
Elektrisch ja Voldoende groepen
Riolering ja
Afzuiginstallatie keuken: ja
Airconditioning: ja In verschillende ruimten, niet in de hotelkamers
Brandmeldinstallatie: ja Laten controleren
Camerabeveliging: ja
Goederenlift: nee
Personenlift nee
Luchtbehandeling: ja
Muziekinstallatie ja
Sprinklers: ja
Vetvangput: ja Achter de keuken
Krachtstroom: ja
Waterontharder: ja
Warmwatervoorzieningen: ja
Zonnepanelen: ja Op dak bedrijfswoning
Overige installaties: nvt
PERSONEEL
Er zijn geen vaste medewerkers in dienst. Het bedrijf is momenteel gesloten.
VERGUNNINGEN
Het object beschikt over de benodigde vergunningen.
Exploitatievergunning: ja
Drank- en horecavergunning: ja
Terrasvergunning: ja
Speelautomatenvergunning: nee
Omgevingsvergunning: ja
Gebruiksmelding: ja
Speelautomatenvergunning: nee
(AFNAME)VERPLICHTINGEN
Er zijn geen (afname)verplichtingen jegens een brouwerij en/of andere leveranciers.
BRANDVEILIGHEIDSEISEN
De brandpreventieve middelen zijn aanwezig en gekeurd, voor het laatst in 2024.
INRICHTINGSEISEN
Het object voldoet aan de inrichtingseisen.
KEURINGEN / LABELS
Scope 10: nee
Electrakeuring: nee
Energielabel: ja, woonhuis
INVENTARIS
De inventaris bevindt zich in goede/gebruikte staat.
LEASE/BRUIKLEEN OVEREENKOMSTEN
Er is geen sprake van lease en/of bruikleen op de inventaris.
BEDRIJFSWONING
Er is zelfstandige woonruimte aanwezig. Het betreft een vrijstaande bedrijfswoning achterop het perceel. De woonruimte beschikt over een zelfstandige entree, hal, keuken, woonkamer en terras aan de voorzijde. Op de verdieping een drietal slaapkamers, hal, badkamer met toilet. Staat van onderhoud is goed.
ZELFSTANDIG APPARTEMENT
Het hoofdgebouw beschikt tevens over een zelfstandig appartement.
Het appartement is bereikbaar via het restaurant en bestaat uit een hal, woonkamer, woonkeuken, ruime slaapkamer, tweede hal en een badkamer.
De staat van onderhoud is goed.
STAAT VAN ONDERHOUD
De staat van onderhoud van de panden is over het algemeen goed.
Er zijn op enkele plaatsen lichte gebruikssporen en kleine onderhoudspunten. In sommige delen is het schilderwerk aan een opfrisbeurt toe.
BIJZONDERHEDEN / USP’S
In bosrijke omgeving, nabij entree Nationaal Park hogeveluwe (200 mtr)
Ruime en sfeervolle terrassen
Parkeren op eigen terrein, electrisch laden voor fietsen en overdekt en afgesloten stallen
Vrijstaande woning
Zelfstandig appartment
4 garagboxen (tbv opslagruimte), divere opslagruimten, veranda
VRAAGPRIJS REGISTERGOED
€ 1.850.000,- k.k. zegge: eenmiljoenachthonderdvijftigduizend euro kosten koper
De vraagprijs van registergoed bestaat o.a. uit een hotel / restaurant met serre, terras, op de begane grond, kelder, terras, bedrijfskeuken, opslagruimten, erf, (onder)grond, tuin en eventuele overige aanhorigheden. Eigen grond. De vraagprijs is inclusief thans aanwezige bedrijfsinventaris / inrichting.
Over de koopsom van de onroerende zaak is geen omzetbelasting verschuldigd, die niet in de koopsom is begrepen (bij levering voor 1 november 2025).
OPTIONEEL: HUURPRIJS REGISTERGOED
€ 160.000,- per jaar, zegge: honderdzestig duizend euro per jaar, exclusief BTW
Er zal een nieuwe huurovereenkomst bedrijfsruimte volgens artikel 7:290 BW worden aangegaan voor een periode van 5 jaar met 5 optiejaren. Het betreft een casco verhuur.
Bijlagen
– Kadastrale gegevens
– Inventarislijst
– Plattegrondtekening
– Winst- en verliesrekening
– Vergunningen
Voorraden
Geen overname voorraden van toepassing.
Biedingen en gunning
Alle biedingen dienen uitsluitend schriftelijk en rechtsgeldig ondertekend te worden ingediend. Mondelinge, telefonische of op andere wijze gedane biedingen worden niet in behandeling genomen.
De gunning van de koop geschiedt uitsluitend door de verkoper, die zich het recht voorbehoudt om zonder opgave van redenen een of meerdere biedingen te weigeren, dan wel de gunning niet te laten plaatsvinden.
Aanbetaling
Bij koopovereenstemming dient koper een aanbetaling ter grootte van 10% van de koopsom te voldoen.
Interesse? Neem contact op met Joey Hehamahua via 06 11 744 732 of joey@klaassenbv.nl.
Kenmerken
- Status Beschikbaar
- Type horeca Café-Restaurant, Wegrestaurant, Hotel (-Café-Restaurant), Restaurant-Partycentrum, Luxe Hotel, Congreshotel, Luxe Restaurant
- Vraagprijs registergoed € 1.850.000,-
- Soort object Horeca
- Oppervlakte 985 m²
- Regio Gelderland, Veluwe en Veluwerand
- Ligging Landelijk gebied
- Bouwjaar 1924
- Overname horeca personeel Nee
- Zitplaatsen n.v.t.
- Terras Nee
- Woonruimte Ja
Media & foto’s

Omgeving
Apeldoornseweg 30, Hoenderloo


Niet gevonden wat u zocht? Plaats een zoekopdracht
Meer horeca aanbod

Prachtige instapklare horecazaak
bekijk objectPrachtige instapklare horecazaak
St. Jansplein 112, Waalwijk
De bedrijfsexploitatie van Brasserie Sublime wordt door Klaassen Vastgoedmakelaardij ter overname aangeboden. Een prachtige horecazaak met tal van mogelijkheden voor diverse horeca concepten. Info: Bedrijfsadviseur, Rody Teulings 06 24 73 86 20.
- Vraagprijs exploitatie € 175.000,-

La Plaisanterie
bekijk objectLa Plaisanterie
Haven Noordzijde 9, Brouwershaven
Royaal restaurant en tuin. Binnen biedt het restaurant momenteel plaats aan 58 gasten. Dit kan worden uitgebreid tot ongeveer 64 gasten. In de ruimte onderscheid je drie delen; voor, midden en achter. Het mooie historische pand met witte gevel trekt de aandacht aan de haven. Dat geldt ook voor het gezellige terras. Er is een klein terras direct aan de gevel waar plaats is voor 8 gasten. Het terras aan de overzijde van de straat, direct aan haven, biedt plaats aan 34 gasten. Op de eerste verdieping is een prettig, ruim appartement.
Info: Bart Brinkman 06 -53960241 of b.brinkman@klaassenbv.nl
- Vraagprijs exploitatie € 375.000,-