aanbod

Uniek te herontwikkelen horecapand met appartement

Hoekstraat 10, Bunschoten-Spakenburg

Huurprijs € 125.000,- p.j. excl. BTW
plan bezichtiging object delen

Omschrijving

Droom jij van een horecaconcept in een historische en levendige omgeving? Dit karakteristieke (nieuwbouw)pand aan Hoekstraat 10 en 12 biedt de perfecte kans! Gelegen in het bruisende centrum van Bunschoten Spakenburg, omringd door cultuur, winkels en het authentieke Zuiderzeekarakter, staat dit pand (bijna) klaar voor jouw visie.

Wat maakt dit pand bijzonder?
• Two-in-one: Twee aaneengesloten adressen met ca. 368 m² bedrijfsruimte en een woning van ca. 80 m², ideaal voor wonen en werken op hetzelfde adres.
• Flexibel en toekomstgericht: Casco-indeling biedt volledige vrijheid om het pand te transformeren naar jouw horecaconcept, studio, werkplaats en/of showroom.
• Centrale zichtbaarheid: Gelegen in een straat met karakter en loop-/fietsafstand tot winkels en horeca, wat zorgt voor maximale exposure.
• Authentieke sfeer: Historische kern van Bunschoten Spakenburg geeft je concept direct allure en aantrekkingskracht.

Waarom deze locatie perfect is?
• Direct in het hart van het centrum: jouw gasten kunnen lopend of per fiets komen.
• Grote ontwikkelingsruimte: de flexibiliteit van het pand maakt het geschikt voor diverse horeca- of mixed-use formules.
• Parkeerfaciliteiten aanwezig: handig voor bezoekers en personeel.

Kortom: Het object is een uitgelezen kans voor ondernemers die een uniek horecapand willen huren in een historische en bruisende omgeving. Grijp deze kans om jouw visie werkelijkheid te maken!

KADASTRALE GEGEVENS
Gemeente Bunschoten, sectie K, nummer 1936, groot 1.733 m². Zie bijlagen in de brochure voor details.

LOCATIE EN SITUERING
Dit karakteristieke pand biedt een perfecte mix van zichtbaarheid, sfeer en ontwikkelingsmogelijkheden. Gelegen in een straat vol historische charme en op loopafstand van winkels, terrassen en de beroemde haven, geniet je hier van een locatie die klanten aantrekt én inspireert.

Het pand is gelegen in het centrum van Bunschoten Spakenburg, een historische plaats met een sterk dorps- en havenkarakter. De straat Hoekstraat bevindt zich in het kerngebied van de stad, waardoor het pand goed zichtbaar is en direct aansluiting heeft op de levendige omgeving met winkels, horeca en culturele hotspots.

Kenmerken van de situering:
• Centrale ligging: Midden in de bebouwde kern, dichtbij de haven en de historische dorpskern. Veel passerend publiek en een aantrekkelijke locatie voor horeca of mixed-use.
• Bereikbaarheid: Goed bereikbaar te voet, per fiets en met de auto. Parkeergelegenheid in de straat of nabijgelegen parkeerplaatsen aanwezig. Snelwegen A1 en A28 binnen enkele minuten bereikbaar.
• Omgeving: Authentieke dorpssfeer met kleinschalige bebouwing; zware industrie of logistieke activiteiten zijn beperkt. Ideaal voor horeca, studio’s, ateliers of creatieve werkplekken.
• Zichtbaarheid: Twee aaneengesloten adressen (10 & 12) zorgen voor een sterke aanwezigheid in de straat.

Kortom: Strategische ligging in het historische en levendige centrum, met zichtbaarheid, bereikbaarheid en karakter die het uitermate geschikt maakt voor herontwikkeling tot horeca, mixed-use of creatieve bedrijfsruimte.

DEMOGRAFISCHE GEGEVENS
Bunschoten Spakenburg is een historische gemeente in de provincie Utrecht met een levendig dorps- en havenkarakter.

Inwoneraantal: ca. 21.265
Geslachtsverdeling: 49,9% mannen / 50,1% vrouwen
Leeftijdsopbouw:
• 0 14 jaar: ~20%
• 15 24 jaar: ~13%
• 25 44 jaar: ~26%
• 45 64 jaar: ~25%
• 65 jaar en ouder: ~16%
Huishoudens:
• Totaal: ca. 8.050
• Eenpersoonshuishoudens: ~24%
• Tweepersoonshuishoudens: ~30%
• Huishoudens met één of meer kinderen: ~45%
Bevolkingsgroei: sinds 2000 ca. 18,3%

BEREIKBAARHEID
Per auto:
• Goed bereikbaar via A1 (10 min) en A28 (15 min).
• Centrum met smalle straatjes; parkeermogelijkheden openbaar en privé aanwezig.
Per fiets:
• Centrum en omliggende dorpen binnen 10 15 min bereikbaar.
• Veilige fietspaden richting scholen, winkels, haven en natuurgebieden.
• Fietsafstand naar Amersfoort: ca. 25 min.
Openbaar vervoer:
• Regionale buslijnen naar Amersfoort, Nijkerk en Putten; haltes dichtbij het centrum.
• Dichtstbijzijnde treinstation: Amersfoort Centraal (~15 km).

BELENDINGEN
De straat kent een mix van functies: (horeca)bedrijven, winkels, woningen en appartementen.

PARKEREN
Ca. 24 parkeerplaatsen op eigen terrein.

BESTEMMING / GEBRUIK
De gemeente heeft toestemming verleend voor gedeeltelijke nieuwbouw en verbouwing van het pand. Na herontwikkeling is toegestaan:
• Horecagelegenheid op de begane grond
• Bovenwoning
• Eventuele aanpassingen conform bestemmingsplan en bouwtechnische voorschriften

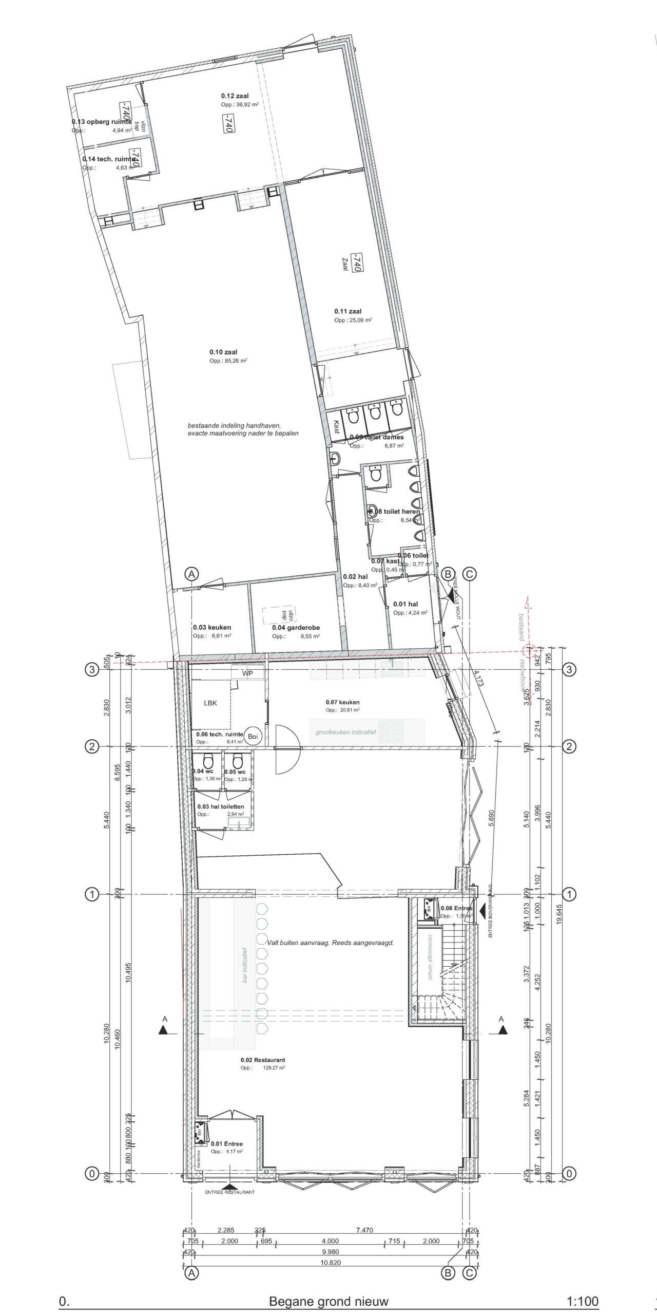
OPPERVLAKTE
Bedrijfsruimte: 368 m²
• Restaurantruimte: ca. 130 m²
• Zaalruimte: ca. 180 m²
• Overige ruimten: 58 m²

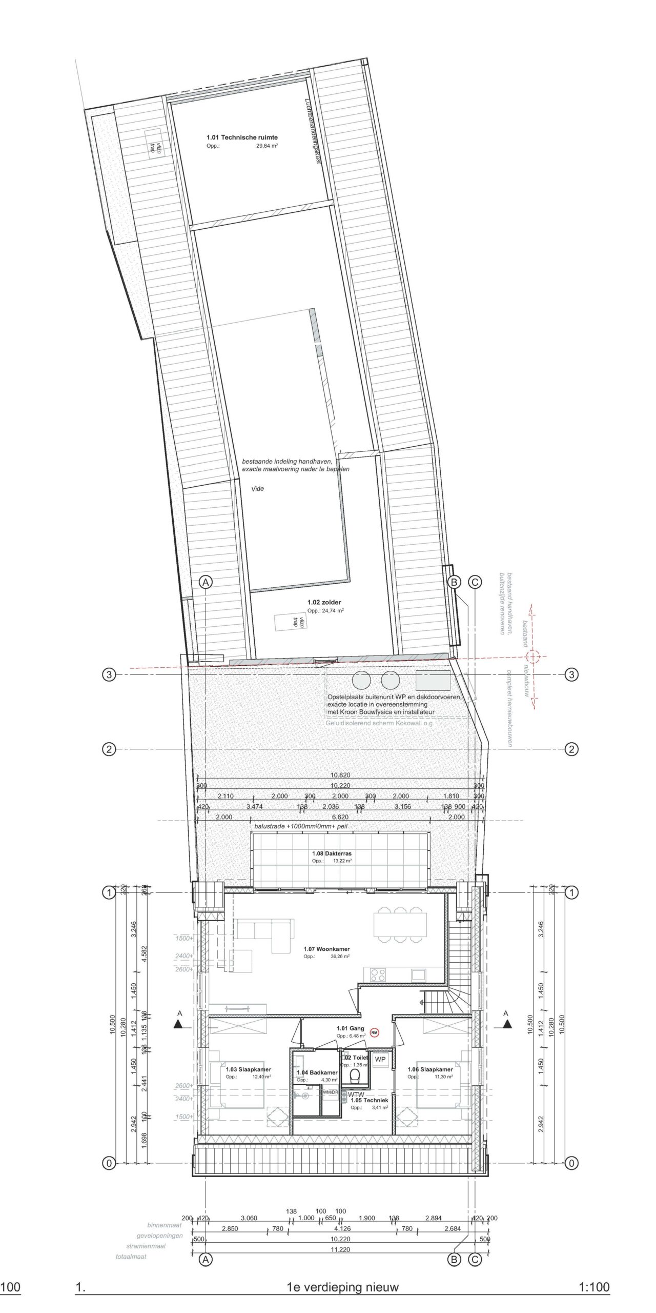
Appartement: 80 m²
• Woonkamer: ca. 36 m²
• Slaapkamer 1: ca. 12 m²
• Slaapkamer 2: ca. 11 m²
• Overige ruimten: 21 m²
• Dakterras: ca. 13 m²

De genoemde metrages zijn inschattingen op basis van beschikbaar gestelde tekeningen. Meetrapport conform NEN 2580 op aanvraag beschikbaar.

ZITPLAATSEN (indicatief)
• Restaurant: 100 zitplaatsen
• Zaal: 150 zitplaatsen
• Terras: nader te bepalen

INDELING
Vrij naar eigen inzicht in te delen; voorbeeldindeling beschikbaar in tekeningen in de bijlage.

VERGUNNINGEN
• Exploitatievergunning: nog niet aanwezig (aan te vragen door huurder)
• Drank- en horecavergunning: nog niet aanwezig (aan te vragen door huurder)
• Terrasvergunning: nog niet aanwezig(aan te vragen door huurder)
• Omgevingsvergunning: Aanwezig (door verhuurder aangevraagd)

BRANDVEILIGHEIDSEISEN
Pand voldoet momenteel niet aan de geldende brandveiligheidseisen.

INRICHTINGSEISEN
Pand voldoet momenteel niet aan de inrichtingseisen.

KEURINGEN / LABELS
• Scope 10: nee
• Elektrakeuring: nee
• Energielabel: nee

INVENTARIS
Huurder dient zelf te investeren in inventaris/bedrijfsinrichting.

WOONRUIMTE
• Zelfstandige entree, hal, 2 slaapkamers, open keuken met woonkamer, badkamer met toilet, technische ruimte en dakterras.

HUURGEGEVENS
• Huurprijs bedrijfsruimte: € 110.000,- p.j., excl. BTW
• Huurprijs appartement: € 25.000,- p.j., BTW niet van toepassing
• Parkeerplaatsen: € 15.000,- p.j., excl. BTW
• Totaal: € 150.000,- p.j., excl. BTW

• Huurovereenkomst volgens ROZ-model 2022, borg 3 maanden huur + BTW
• Servicekosten: huurder sluit eigen gas, water, elektra aan
• Oplevering: in overleg na voltooiing verbouwing (okt/nov 2025)

BIJZONDERHEDEN
• Casco-plus horecapand met appartement en diverse afbouwmogelijkheden
• Verhuurder behoudt zich gunning voor

BIJLAGEN
• Kadastrale gegevens
• Plattegrondtekening
• Vergunningen
• Keuringen / labels

Meer info? Joey@klaassenbv.nl of 0611744732

lees meer lees minder

Kenmerken

  • Status Beschikbaar
  • Type horeca Discotheek, Bistro, Petit-Restaurant, (Café) Zalencentrum, Restaurant-Partycentrum, Congres-Zalencentrum, Luxe Restaurant
  • Huurprijs p.j. € 125.000,-
  • Soort object Horeca
  • Oppervlakte 448 m²
  • Regio Utrecht
  • Ligging In woonwijk
  • Bouwjaar 1920
  • Overname horeca personeel Nee
  • Zitplaatsen 250
  • Terras Ja
  • Woonruimte Nee
meer kenmerken lees minder

Media & foto’s

Omgeving

Hoekstraat 10, Bunschoten-Spakenburg

Joey Hehamahua, Partner
VRAGEN?

Heeft u vragen over dit object? Joey Hehamahua helpt u graag verder

Contact
Meer dan 30+ experts

Ook vandaag zijn wij actief in 24 verschillende regio’s

zoekopdracht

Niet gevonden wat u zocht? Plaats een zoekopdracht

bekijk ook

Meer horeca aanbod

Beschikbaar

Italiaans restaurant op toplocatie

bekijk object

Italiaans restaurant op toplocatie

Spuistraat 74, Bunschoten-Spakenburg

Aan het populaire horecaplein van het pittoreske vissersdorp Bunschoten-Spakenburg ligt dit instapklare Italiaanse restaurant, met wekelijks markt voor de deur, uitzicht op de historische haven met botters en een constante stroom van toeristen en dagjesmensen.
Het restaurant is modern en sfeervol ingericht, beschikt over een lichte serre en een zonnig terras, en is volledig operationeel.

Info: Alex Willemse via, 06-50445472

  • Vraagprijs exploitatie € 195.000,-
  • Huurprijs € 3.616,- p.m.
bekijk object
Beschikbaar

Marktuitvraag: luxe kantoor, horeca keuken en bar

bekijk object

Marktuitvraag: luxe kantoor, horeca keuken en bar

Voltairetuin 4, Capelle aan den IJssel

Klaassen Vastgoedmakelaardij mag een luxe en hoogwaardig afgewerkte kantoorruimte in Capelle aan de Ijssel te huur aanbieden. Het object beslaat circa 500m² en is recentelijk in een nieuw jasje gestoken waarbij kosten noch moeite zijn gespaard. Wij vragen geïnteresseerde partijen om een voorstel te doen voor een huurovereenkomst en overname van de inrichting. 

Meer info: Bas van Dijk via b.vandijk@klaassen.nl / 06 41 38 09 46

  • Vraagprijs exploitatie Prijs op aanvraag
  • Huurprijs € 4.000,- p.m.
bekijk object
Aanbod

Bent u op zoek naar iets specifieks? Plaats een zoekopdracht of neem direct contact met ons op.

Contact
inplannen

Plan een bezichtiging

Naam(Vereist)
Dit veld is bedoeld voor validatiedoeleinden en moet niet worden gewijzigd.

Welke cookies zijn er?

We maken onderscheid tussen verschillende soorten cookies

Functionele cookies

We gebruiken zowel sessie-cookies (vervallen wanneer de webbrowser wordt afgesloten) en blijvende cookies (blijven op je apparaat tenzij deze worden gewist). Hieronder volgt een overzicht van de cookies waar we gebruik van maken.

Analytische cookies

We gebruiken zowel sessie-cookies (vervallen wanneer de webbrowser wordt afgesloten) en blijvende cookies (blijven op je apparaat tenzij deze worden gewist). Hieronder volgt een overzicht van de cookies waar we gebruik van maken.

Tracking cookies

We gebruiken zowel sessie-cookies (vervallen wanneer de webbrowser wordt afgesloten) en blijvende cookies (blijven op je apparaat tenzij deze worden gewist). Hieronder volgt een overzicht van de cookies waar we gebruik van maken.

Social media plug-in cookies

We gebruiken zowel sessie-cookies (vervallen wanneer de webbrowser wordt afgesloten) en blijvende cookies (blijven op je apparaat tenzij deze worden gewist). Hieronder volgt een overzicht van de cookies waar we gebruik van maken.

zoeken

Wij helpen u graag met uw zoektocht

"*" geeft vereiste velden aan

Dit veld is bedoeld voor validatiedoeleinden en moet niet worden gewijzigd.

Zoekopdracht

Ontvang als eerste ons nieuwe aanbod

"*" geeft vereiste velden aan

Wilt u een object kopen of huren?

Waar bent u naar op zoek?

Hoe kunnen wij u bereiken?

Dit veld is bedoeld voor validatiedoeleinden en moet niet worden gewijzigd.