aanbod

Casco commerciële ruimte met kelderuitbreiding

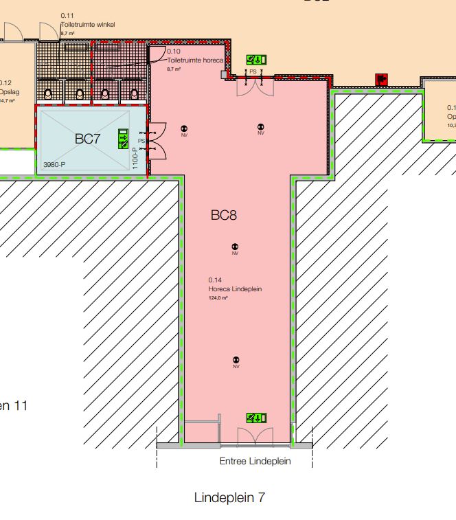
Lindeplein 7, Oisterwijk

Huurprijs € 2.625,- p.m. excl. BTW
plan bezichtiging object delen

Omschrijving

Algemeen
Dit object bevindt zich op een aantrekkelijke locatie aan het Lindeplein in het gezellige centrum van Oisterwijk. De ruimte wordt casco opgeleverd en biedt daarmee alle vrijheid om het pand volledig naar eigen wens en concept in te richten. Met een zonnig terras is de basis voor een sterk horecaconcept aanwezig.

Het Lindeplein is het kloppende hart van het centrum van Oisterwijk. Het autovrije plein heeft een gezellig karakter, met rondom horeca en winkels.
De bereikbaarheid is uitstekend. Het NS station ligt op nog geen 5 minuten lopen, en parkeren is geen probleem: er is een grote parkeergarage direct aan het plein.
Oisterwijk ligt centraal in de driehoek Den Bosch, Eindhoven en Tilburg, waardoor het verzorgingsgebied ruim is. Ideaal voor een concept dat ook bezoekers van buiten het dorp wil trekken.

Indeling
De begane grond omvat ca. 133m2 en beschikt over een terras aan de voorzijde.
De kelder van circa 50 m² biedt extra opbergruimte of kan functioneel worden ingezet als onderdeel van de exploitatie.

Wat dit object echt onderscheidt, is de mogelijkheid om de kelder uit te breiden tot maar liefst circa 1.000 m². Dit maakt de locatie uitermate geschikt voor ondernemers met ambities op het gebied van leisure, denk aan een escape room, bowlingbaan, evenementenlocatie of een ander belevenisconcept. Over de aanvullende huurprijs voor de grotere kelder is nader te bepalen.

De bestemming laat naast horeca ook detailhandel toe, waardoor het pand evengoed geschikt is als winkelruimte.

Huurprijs: € 31.500,00 per jaar, exclusief BTW.

Een aantaal getoonde impressies zijn gegenereerd met behulp van AI en dienen ter inspiratie.

lees meer lees minder

Kenmerken

  • Status Beschikbaar
  • Type horeca Café-Restaurant, Bistro, Petit-Restaurant, Lunchroom, Broodjeszaak
  • Huurprijs p.m. € 2.625,-
  • Soort object Horeca
  • Oppervlakte 180 m²
  • Regio Noord-Brabant
  • Ligging Winkelgebied stadscentrum
  • Bouwjaar 2011
  • Overname horeca personeel Nee
  • Zitplaatsen n.v.t.
  • Terras Nee
  • Woonruimte Nee
meer kenmerken lees minder

Media & foto’s

Omgeving

Lindeplein 7, Oisterwijk

Margot van den Heuvel, Bedrijfsadviseur
VRAGEN?

Heeft u vragen over dit object? Margot van den Heuvel helpt u graag verder

Contact
Meer dan 30+ experts

Ook vandaag zijn wij actief in 24 verschillende regio’s

zoekopdracht

Niet gevonden wat u zocht? Plaats een zoekopdracht

bekijk ook

Meer horeca aanbod

Restaurant STOOF Sneek Friesland
Beschikbaar

Restaurant STOOF Sneek Friesland

bekijk object

Restaurant STOOF Sneek Friesland

Grootzand 22, Sneek

Restaurant STOOF – instapklare horecatopper op A-locatie in Sneek - Friesland.

Op een prominente plek aan het Grootzand ligt het succesvolle Restaurant STOOF: een bewezen concept met uitstekende reputatie en veel potentieel.

Bekend om “Wereldse smaken, Ouderwets lekker” en geliefd bij een breed publiek voor lunch, borrel en diner. De sfeervolle restaurant beschikt over circa 60 zitplaatsen, een zonnig terras met 40 zitplaatsen en een multifunctionele bovenzaal met 30 zitplaatsen, ideaal voor evenementen en groepen.

Volledig operationeel, uitstekend onderhouden en inclusief unieke recepten en concept.

Een unieke kans om direct te starten of het concept naar eigen hand te zetten.
Info: Klaassen Horecamakelaars, J. (Jan) H. Elslo T 06 – 135 80 117

  • Vraagprijs exploitatie € 175.000,-
  • Huurprijs € 30.000,- p.j.
bekijk object
Beschikbaar

Goedlopende brasserie nabij Nijmegen

bekijk object

Goedlopende brasserie nabij Nijmegen

Unieke locatie aan de Waal 39, Omg. Nijmegen

Landelijk gelegen brasserie met goedlopende exploitatie, al decennia een begrip in de regio. Prachtig terras met geweldige uitzichten.  Markante dijk-locatie, 10 minuten fietsen van Nijmegen.  

Voor info: Horecamakelaar R. van Doorn, 06-20002530

  • Vraagprijs exploitatie € 169.000,-
  • Huurprijs € 4.720,- p.m.
bekijk object
Aanbod

Bent u op zoek naar iets specifieks? Plaats een zoekopdracht of neem direct contact met ons op.

Contact
inplannen

Plan een bezichtiging

Naam(Vereist)
Dit veld is bedoeld voor validatiedoeleinden en moet niet worden gewijzigd.

Welke cookies zijn er?

We maken onderscheid tussen verschillende soorten cookies

Functionele cookies

We gebruiken zowel sessie-cookies (vervallen wanneer de webbrowser wordt afgesloten) en blijvende cookies (blijven op je apparaat tenzij deze worden gewist). Hieronder volgt een overzicht van de cookies waar we gebruik van maken.

Analytische cookies

We gebruiken zowel sessie-cookies (vervallen wanneer de webbrowser wordt afgesloten) en blijvende cookies (blijven op je apparaat tenzij deze worden gewist). Hieronder volgt een overzicht van de cookies waar we gebruik van maken.

Tracking cookies

We gebruiken zowel sessie-cookies (vervallen wanneer de webbrowser wordt afgesloten) en blijvende cookies (blijven op je apparaat tenzij deze worden gewist). Hieronder volgt een overzicht van de cookies waar we gebruik van maken.

Social media plug-in cookies

We gebruiken zowel sessie-cookies (vervallen wanneer de webbrowser wordt afgesloten) en blijvende cookies (blijven op je apparaat tenzij deze worden gewist). Hieronder volgt een overzicht van de cookies waar we gebruik van maken.

zoeken

Wij helpen u graag met uw zoektocht

"*" geeft vereiste velden aan

Dit veld is bedoeld voor validatiedoeleinden en moet niet worden gewijzigd.

Zoekopdracht

Ontvang als eerste ons nieuwe aanbod

"*" geeft vereiste velden aan

Wilt u een object kopen of huren?

Waar bent u naar op zoek?

Hoe kunnen wij u bereiken?

Dit veld is bedoeld voor validatiedoeleinden en moet niet worden gewijzigd.