aanbod

(Horeca)bedrijfspand met bovenwoning

Kaatsbaan 27, Maarssen

Vraagprijs registergoed € 695.000,- k.k.
plan bezichtiging object delen

Omschrijving

OBJECTINFORMATIE
Het registergoed wordt momenteel vrij van huur en gebruik aangeboden en bestaat o.a. uit een bedrijfsruimte op de begane grond en een zelfstandige woning op de eerste en tweede verdieping. Gelegen in het hartje centrum van Maarssendorp. De bedrijfsruimte is uitermate geschikt als horeca en/of winkel.

KADASTER
Kadastraal bekend gemeente Maarssen, sectie A, nummer 4863. Wonen met bedrijvigheid.

LIGGING
Gelegen in het historische centrum van Maarssen-Dorp, binnen de gemeente Stichtse Vecht, provincie Utrecht. Het pand bevindt zich in een levendige winkelstraat met diverse horecagelegenheden, speciaalzaken en winkels zoals HEMA en Kruidvat. De locatie is goed bereikbaar met het openbaar vervoer; een bushalte ligt op ongeveer 59 meter afstand en het treinstation Maarssen op circa 788 meter.

BESTEMMINGSPLAN
Bekijk het complete bestemmingsplan op www.ruimtelijkeplannen.nl of omgevingsloket.nl.
Het object is gelegen binnen het bestemmingsplan Maarssen aan de Vecht, van de Gemeente Stichtse Vecht. Met nadere aanduiding H4, horeca, categorie 4. Dagexploitatie / restaurant/ café/zaalaccommodatie is toegestaan.Winkelfunctie is tevens toegestaan.

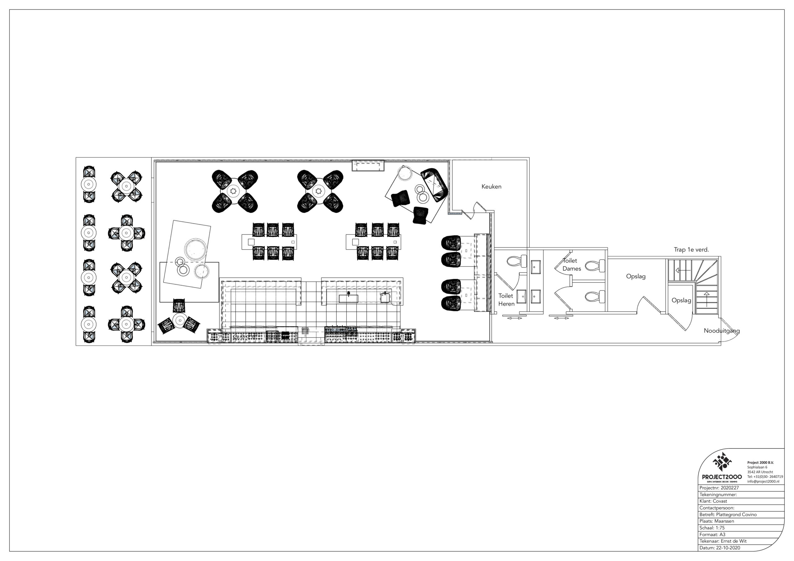
METRAGE/CAPACITEIT
De totale m² van het object bedraagt:
Bedrijfsruimte op de begane grond ca. 100 m²
Woning op de eerste en tweede verdieping ca. 120 m²
Totaal bedrijfsruimte en woning ca. 220 m2 exclusief dakterras.

Voor de plattegrond tekening wordt verwezen naar de bijlage in de verkoopbrochure.

STAAT VAN ONDERHOUD
De staat van onderhoud van het pand is goed. Er is thans geen sprake van achterstallig onderhoud.

BEDRIJFSRUIMTE
De bedrijfsruimte op de begane grond is momenteel niet verhuurd. De verwachte markthuur bedraagt circa € 30.000 per jaar, exclusief btw. De ruimte bestaat uit een entree, een bedrijfsruimte met bar, een keuken, toiletgroep en diverse opslagruimten. Het object is geschikt voor diverse horecadoeleinden conform het bestemmingsplan. De bedrijfsruimte is te huur, hiervoor wordt verwezen naar https://www.klaassenbv.nl/bedrijven/object/kaatsbaan-27-maarssen/

De bedrijfsruimte op de begane grond is zeer geschikt als lunchroom, restaurant, café en/of winkel.

WOONRUIMTE
De woning beschikt over een eigen entree aan de achterzijde, een hal, drie slaapkamers, een open keuken met woonkamer, een badkamer met toilet, een dakterras en een tweede terras. De woonruimte is in 2022 volledig verbouwd en verkeert in goede staat van onderhoud.

ENERGIELABEL
Label A, geldig tot 15-01-2034.

GUNNING
Verkoper behoudt zich het recht van gunning.

BIJZONDERHEDEN/ USP’S
– Ligging in het centrum van Maarssendorp, winkelstraat
– De woning is in 2022 geheel verbouwd
– De bedrijfsruimte is in 2020 geheel verbouwd.

VRAAGPRIJS REGISTERGOED*
€ 695.000,- k.k.

*De vraagprijs van registergoed bestaat o.a. uit de (horeca)bedrijfsruimte op de begane grond, met woning op de verdiepingen, ondergrond en eventuele overige aanhorigheden.

AANBETALING
Koper dient een aanbetaling ter grootte van 10% van de totale koopsom te voldoen.

Er kunnen geen rechten worden ontleend aan bovenstaande informatie. Dit object wordt u aangeboden door Joey Hehamahua van Klaassen Vastgoedmakelaardij.

lees meer lees minder

Kenmerken

  • Status Beschikbaar
  • Type horeca Café-Restaurant, Café, Eetcafé, Bistro, Petit-Restaurant, Lunchroom, Broodjeszaak, Cafetaria, Restaria, Ijssalon
  • Vraagprijs registergoed € 695.000,-
  • Soort object Winkelruimte
  • Oppervlakte 100 m²
  • Regio Utrecht
  • Ligging Winkelgebied stadscentrum
  • Bouwjaar 1940
  • Overname horeca personeel Nee
  • Zitplaatsen 150
  • Terras Ja
  • Woonruimte Nee
meer kenmerken lees minder

Media & foto’s

Omgeving

Kaatsbaan 27, Maarssen

Joey Hehamahua, Partner
VRAGEN?

Heeft u vragen over dit object? Joey Hehamahua helpt u graag verder

Contact
Meer dan 30+ experts

Ook vandaag zijn wij actief in 24 verschillende regio’s

zoekopdracht

Niet gevonden wat u zocht? Plaats een zoekopdracht

bekijk ook

Meer horeca aanbod

Beschikbaar

Te huur: (horeca)bedrijfsruimte

bekijk object

Te huur: (horeca)bedrijfsruimte

Kaatsbaan 27, Maarssen

Deze prachtige (horeca)bedrijfsruimte (ca. 100 m2) is gevestigd in het hartje centrum van Maarssen-dorp, op de begane grond van een karakteristiek pand, in de winkelstraat van Maarssen. Op loopafstand van alle voorzieningen en de rivier de Vecht ligt dit multifunctionele bedrijfspand. 


Voor meer info: Joey Hehamahua op 0611744732 | joey@klaassenbv.nl

  • Vraagprijs exploitatie Prijs op aanvraag
  • Huurprijs € 30.000,- p.j. excl. BTW
bekijk object
Beschikbaar

Italiaans Restaurant Splendido

bekijk object

Italiaans Restaurant Splendido

Harmonieplein 43, Maarssen

Splendido is gevestigd in Maarssen centrum, in een prachtig pand, waar zich vele winkels, kantoren, woningen en horecabedrijven bevinden. Op de gezellige terrassen op het plein is het zomers heerlijk vertoeven. Er zijn ca. 50 zitplaatsen binnen, ca. 55 zitplaatsen op het terras.

Info: Pepijn van Lier, 06-40240698 of
p.vanlier@klaassenbv.nl | Joey Hehamahua  0611744732 of joey@klaassenbv.nl 

  • Vraagprijs exploitatie € 99.500,-
  • Huurprijs € 25.000,- p.j. excl. BTW
bekijk object
Aanbod

Bent u op zoek naar iets specifieks? Plaats een zoekopdracht of neem direct contact met ons op.

Contact
inplannen

Plan een bezichtiging

Naam(Vereist)
Dit veld is bedoeld voor validatiedoeleinden en moet niet worden gewijzigd.

Welke cookies zijn er?

We maken onderscheid tussen verschillende soorten cookies

Functionele cookies

We gebruiken zowel sessie-cookies (vervallen wanneer de webbrowser wordt afgesloten) en blijvende cookies (blijven op je apparaat tenzij deze worden gewist). Hieronder volgt een overzicht van de cookies waar we gebruik van maken.

Analytische cookies

We gebruiken zowel sessie-cookies (vervallen wanneer de webbrowser wordt afgesloten) en blijvende cookies (blijven op je apparaat tenzij deze worden gewist). Hieronder volgt een overzicht van de cookies waar we gebruik van maken.

Tracking cookies

We gebruiken zowel sessie-cookies (vervallen wanneer de webbrowser wordt afgesloten) en blijvende cookies (blijven op je apparaat tenzij deze worden gewist). Hieronder volgt een overzicht van de cookies waar we gebruik van maken.

Social media plug-in cookies

We gebruiken zowel sessie-cookies (vervallen wanneer de webbrowser wordt afgesloten) en blijvende cookies (blijven op je apparaat tenzij deze worden gewist). Hieronder volgt een overzicht van de cookies waar we gebruik van maken.

zoeken

Wij helpen u graag met uw zoektocht

"*" geeft vereiste velden aan

Dit veld is bedoeld voor validatiedoeleinden en moet niet worden gewijzigd.

Zoekopdracht

Ontvang als eerste ons nieuwe aanbod

"*" geeft vereiste velden aan

Wilt u een object kopen of huren?

Waar bent u naar op zoek?

Hoe kunnen wij u bereiken?

Dit veld is bedoeld voor validatiedoeleinden en moet niet worden gewijzigd.