aanbod

Riante horecaruimte Paleiskwartier

Onderwijsboulevard 734, 's-Hertogenbosch

Huurprijs € 285,- per vierkante meter per jaar excl. BTW
plan bezichtiging object delen

Omschrijving

Namens onze opdrachtgever bieden wij deze casco commerciële ruimte te huur aan.
Het betreft een absolute top locatie in het hart van het Paleiskwartier.

Ligging
Het Paleiskwartier is een moderne stadswijk gelegen aan de westzijde van station ’s Hertogenbosch Centraal en direct grenzend aan het historische centrum van ’s-Hertogenbosch. De wijk kenmerkt zich door een mix van wonen, werken, studeren en recreëren, met een opvallende architectuur, hoogwaardige nieuwbouw, een centrale waterpartij en toegang tot stedelijke voorzieningen.

Omschrijving object
Het betreft een nieuwbouw casco commerciële ruimte die geschikt is voor diversen invullingen zoals
horeca, kantoor of medisch. De ruimte beschikt over hoge plafonds, een tweetal toegangsmogelijkheden en een hoogteverschil in de vloer, deelverhuur is hierdoor goed mogelijk.

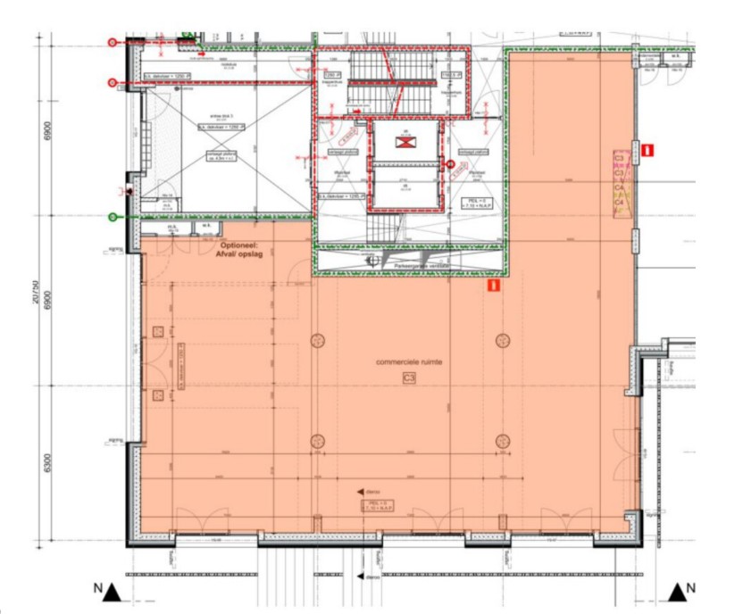
Metrage/capaciteit
De totale m² van het object bedragen 268 m.

Voor de plattegrond tekening wordt verwezen naar de foto’s.

lees meer lees minder

Kenmerken

  • Status Beschikbaar
  • Type horeca Eetcafé, Bistro, Petit-Restaurant
  • Huurprijs m²/jaar € 285,-
  • Soort object Horeca
  • Oppervlakte 268 m²
  • Regio Noord-Brabant
  • Ligging n.v.t.
  • Bouwjaar n.v.t.
  • Overname horeca personeel Nee
  • Zitplaatsen n.v.t.
  • Terras Ja
  • Woonruimte Nee
meer kenmerken lees minder

Media & foto’s

Omgeving

Onderwijsboulevard 734, 's-Hertogenbosch

Margot van den Heuvel, Bedrijfsadviseur
VRAGEN?

Heeft u vragen over dit object? Margot van den Heuvel helpt u graag verder

Contact
Meer dan 30+ experts

Ook vandaag zijn wij actief in 24 verschillende regio’s

zoekopdracht

Niet gevonden wat u zocht? Plaats een zoekopdracht

bekijk ook

Meer horeca aanbod

Beschikbaar

Casco Horecaruimte (448 m2) Paleiskwartier

bekijk object

Casco Horecaruimte (448 m2) Paleiskwartier

Residentieplein 4, 's-Hertogenbosch

Casco Horecaruimte (448 m2) beschikbaar aan het Residentieplein in het bruisende Paleiskwartier van ’s-Hertogenbosch, met riante terrassen. Deze locatie combineert zichtbaarheid, bereikbaarheid en een eigentijdse uitstraling, waardoor het ideaal is voor diverse horecaconcepten.

Info: Bedrijfsadviseur Margot van den Heuvel, 06-42222872.

  • Vraagprijs exploitatie Prijs op aanvraag
  • Huurprijs € 295,- per vierkante meter per jaar excl. BTW
bekijk object
Beschikbaar

Sfeervolle lunchroom in het centrum

bekijk object

Sfeervolle lunchroom in het centrum

Achter het stadhuis 5, 's-Hertogenbosch

Het authentieke pand ligt aan een sfeervolle straat met historische charme, een constante passantenstroom. Dankzij de speelse indeling en een praktische keuken is dit een ideale locatie voor een onderscheidend koffie-, lunch-, bistro- of tapasconcept.

Info: horecamakelaar Margot van den Heuvel, 06 42 22 28 72 of m.vandenheuvel@klaassenbv.nl.

  • Vraagprijs exploitatie € 85.000,-
  • Huurprijs € 3.593,- p.m. excl. BTW
bekijk object
Aanbod

Bent u op zoek naar iets specifieks? Plaats een zoekopdracht of neem direct contact met ons op.

Contact
inplannen

Plan een bezichtiging

Naam(Vereist)
Dit veld is bedoeld voor validatiedoeleinden en moet niet worden gewijzigd.

Welke cookies zijn er?

We maken onderscheid tussen verschillende soorten cookies

Functionele cookies

We gebruiken zowel sessie-cookies (vervallen wanneer de webbrowser wordt afgesloten) en blijvende cookies (blijven op je apparaat tenzij deze worden gewist). Hieronder volgt een overzicht van de cookies waar we gebruik van maken.

Analytische cookies

We gebruiken zowel sessie-cookies (vervallen wanneer de webbrowser wordt afgesloten) en blijvende cookies (blijven op je apparaat tenzij deze worden gewist). Hieronder volgt een overzicht van de cookies waar we gebruik van maken.

Tracking cookies

We gebruiken zowel sessie-cookies (vervallen wanneer de webbrowser wordt afgesloten) en blijvende cookies (blijven op je apparaat tenzij deze worden gewist). Hieronder volgt een overzicht van de cookies waar we gebruik van maken.

Social media plug-in cookies

We gebruiken zowel sessie-cookies (vervallen wanneer de webbrowser wordt afgesloten) en blijvende cookies (blijven op je apparaat tenzij deze worden gewist). Hieronder volgt een overzicht van de cookies waar we gebruik van maken.

zoeken

Wij helpen u graag met uw zoektocht

"*" geeft vereiste velden aan

Dit veld is bedoeld voor validatiedoeleinden en moet niet worden gewijzigd.

Zoekopdracht

Ontvang als eerste ons nieuwe aanbod

"*" geeft vereiste velden aan

Wilt u een object kopen of huren?

Waar bent u naar op zoek?

Hoe kunnen wij u bereiken?

Dit veld is bedoeld voor validatiedoeleinden en moet niet worden gewijzigd.