Prachtige instapklare horecazaak
St. Jansplein 112, Waalwijk
Omschrijving
Algemeen
De bedrijfsexploitatie van Brasserie Sublime wordt door Klaassen horecamakelaardij ter overname aangeboden. Brasserie Sublime onderscheidt zich door een extreem hoogwaardige afwerking, waarbij kosten noch moeite zijn gespaard om een sfeer van luxe, comfort en professionaliteit neer te zetten.
Ligging
Brasserie Sublime is gevestigd op een zichtlocatie met veel passanten, dichtbij winkels, kantoren en culturele voorzieningen. Dankzij de centrale ligging in Waalwijk trekt de zaak een breed publiek aan. Parkeergelegenheid is ruim voorhanden in de directe omgeving, en de bereikbaarheid per auto en openbaar vervoer is uitstekend.
Bedrijfsconcept
Brasserie Sublime staat voor verfijnde gastvrijheid in een toegankelijke en eigentijdse setting. Het concept combineert de kwaliteit van een modern restaurant met de laagdrempeligheid van een brasserie. Gasten voelen zich direct welkom, of ze nu komen voor een goede kop koffie, een zakelijke lunch of een uitgebreid diner met vrienden.
https://www.brasseriesublime.nl/
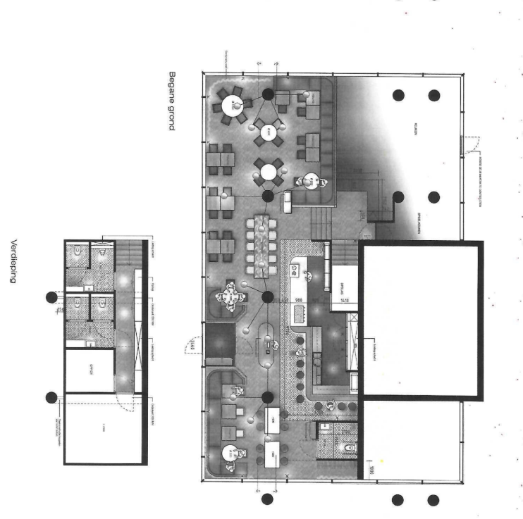
Metrage/capaciteit
De totale m² van het object bedragen 260m² en heeft thans ca. 75 zitplaatsen. Het terras beschikt over ca. 65 zitplaatsen.
Voor de plattegrond tekening wordt verwezen naar de bijlage.
(Afname)verplichtingen
Er zijn geen afname verplichtingen.
Vergunningen
Het object beschikt over de benodigde vergunningen.
Personeel
Er zijn personeelsverplichtingen aanwezig. Een overzicht is op aanvraag te verstrekken.
Inventaris
De inventaris bevindt zich in zeer goede onderhouden staat.
Woonruimte
Er is geen woonruimte aanwezig.
Kadaster
Het object bestaat uit, kadastraal bekend gemeente:
Gemeente Waalwijk, Sectie D, 3614 A5
Bestemmingsplan
Bekijk het complete bestemmingsplan op www.omgevingsloket.nl
Energielabel
Het pand beschikt over een energielabel A+.
Bijzonderheden / USP’s
Sfeervol en onderscheidend interieur
Hoogwaardige afwerking
Ligging in centrum van Waalwijk
Vraagprijs exploitatie
Vraagprijs inventaris & goodwill: € 175.000,00
Er kunnen geen rechten worden ontleend aan bovenstaande informatie. Dit object wordt u aangeboden door Rody Teulings.
Kenmerken
- Status Beschikbaar
- Type horeca Bistro, Petit-Restaurant, Luxe Restaurant
- Vraagprijs exploitatie € 175.000,-
- Soort object Horeca
- Oppervlakte 260 m²
- Regio Noord-Brabant
- Ligging n.v.t.
- Bouwjaar 2009
- Overname horeca personeel Ja
- Zitplaatsen 75
- Terras Ja
- Woonruimte Nee
Media & foto’s

Omgeving
St. Jansplein 112, Waalwijk


Niet gevonden wat u zocht? Plaats een zoekopdracht
Meer horeca aanbod

Brasserie Sublime
bekijk objectBrasserie Sublime
St. Jansplein 112, Waalwijk
Het registergoed en de bedrijfsexploitatie van Brasserie Sublime wordt door Klaassen Vastgoedmakelaardij ter overname aangeboden. Ontdek Sublime: dé ontmoetingsplek in hartje Waalwijk.
Info: Bedrijfsadviseur, Rody Teulings 06 24 73 86 20.
- Vraagprijs registergoed € 720.000,- k.k.
- Vraagprijs exploitatie € 175.000,-

Commerciële ruimte centrum Waalwijk
bekijk objectCommerciële ruimte centrum Waalwijk
Grotestraat 196, Waalwijk
In een prachtig karakteristiek pand in het centrum van Waalwijk is op dit moment een lunchroom van ca 80 m2 gevestigd. Aan de voorzijde is een knus terras met ca. 16 zitplaatsen. Deze locatie is prima geschikt voor vele concepten ook eventueel geen horeca. U wordt uitgenodigd om een reëel overname voorstel te doen bij het juiste voorstel is gespreide betaling mogelijk tevens is een deel van de overname van de inventaris bespreekbaar.
Info: Horecamakelaar Ad Janse, 06-109 680 36
- Vraagprijs exploitatie Prijs op aanvraag
- Huurprijs € 2.000,- p.m. excl. BTW